Sunny rear garden and double garage — ideal for a single-level refit or extension.
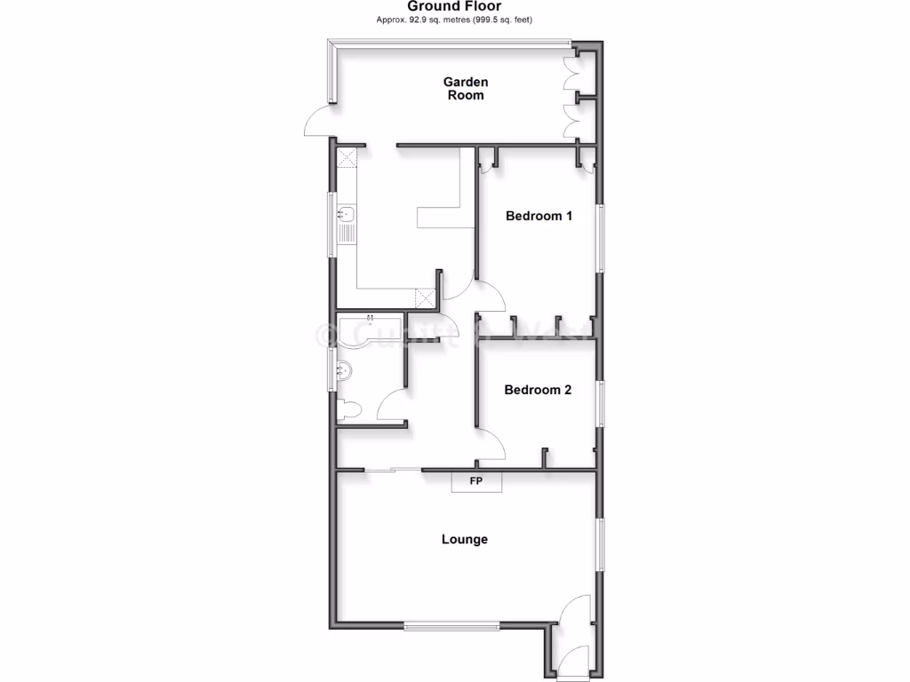
Detached two-bedroom bungalow on a private road
Large, sunny rear garden with strong extension potential (subject to planning)
Double garage plus multiple off-road parking spaces
Spacious lounge and 21' garden room add flexible living space
Mid-20th century fittings and décor are dated and may need updating
Freehold tenure; moderate council tax; no flood risk
Slow broadband and average mobile signal — check connectivity options
Close to shops, bus links and Good-rated local schools
Set on a generous plot on a private road in sought-after Rose Hill, this detached two-bedroom bungalow offers peace, privacy and clear scope to create a longer-term home. The existing footprint includes a spacious lounge, kitchen/diner, large garden room and a double garage with off-road parking — a practical base for downsizers or buyers seeking single-floor living.
The rear garden is private and sunny, and the plot presents realistic potential to extend or redevelop subject to planning permission. The bungalow retains mid-20th century character and built-in storage, giving an immediate liveable space while also offering scope for refurbishment to suit modern tastes.
Practical points: the property is freehold with moderate council tax, no flood risk and very low local crime. Broadband speeds are slow and mobile signal average; buyers who need fast home working connectivity should check availability of upgrades. The property is offered with standard disclaimers on services and fixtures — interested parties should verify working order and any planning history.
This home is well placed for local amenities, schools rated Good, and travel links around Waterlooville. For buyers seeking a quiet, private plot with room to grow, this bungalow provides a solid, adaptable starting point with genuine extension potential.
3 bedroom bungalow for sale in Rose Hill, Waterlooville, Hampshire, PO8 — £500,000 • 3 bed • 1 bath • 1053 ft²
3 bedroom detached bungalow for sale in Crown Close, Waterlooville, PO7 — £450,000 • 3 bed • 1 bath • 883 ft²
3 bedroom detached bungalow for sale in Tanner's Ridge, Waterlooville, Hampshire, PO7 — £350,000 • 3 bed • 1 bath • 735 ft²
2 bedroom detached bungalow for sale in The Rise, Waterlooville, PO7 — £375,000 • 2 bed • 1 bath • 703 ft²
3 bedroom detached bungalow for sale in Longwood Avenue, Cowplain, PO8 — £425,000 • 3 bed • 1 bath • 1186 ft²
2 bedroom detached bungalow for sale in Farlington, Hampshire, PO6 — £435,000 • 2 bed • 1 bath • 921 ft²














































