Low guide price for experienced renovators or buy-to-let investors seeking uplift..
- Vacant freehold mid-terrace with vacant possession on completion
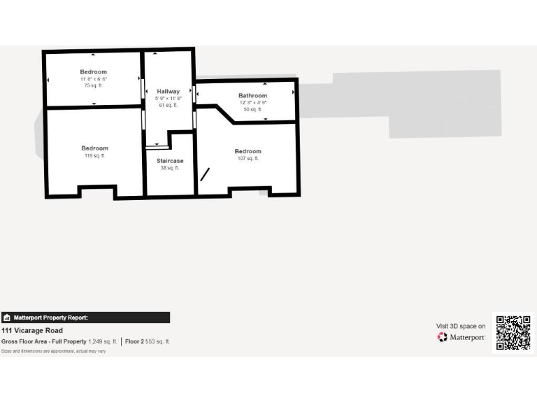
- Three bedrooms, two receptions, kitchen; circa 1,249 sq ft
- Requires full modernisation: kitchen, bathroom, redecoration
- Solid brick walls assumed uninsulated; thermal upgrade likely needed
- Gas boiler and radiators present; double glazing already fitted
- EPC rating D; buyers should budget for energy improvements
- Auction sale — unconditional exchange; administration fee applies
- Local area: very deprived with above-average crime rates
A vacant three-bedroom Victorian mid-terrace on Vicarage Road offered for sale by auction with vacant possession. The property retains bay-window character, gas central heating and double glazing, and sits on a small foregarden with a rear garden. At approximately 1,249 sq ft, the layout provides two reception rooms, kitchen and three first-floor bedrooms — a practical footprint for conversion or rental use.
The house is in need of full modernisation: cosmetic refurbishment, likely kitchen and bathroom replacement and general updating throughout. Walls are original solid brick with no assumed insulation, and the property has an EPC rating of D. The auction sale means unconditional exchange on the fall of the gavel; buyers must review the legal pack and allow for an administration fee and any additional costs listed in the special conditions.
This lot suits a hands-on investor or experienced renovator seeking a low entry price and uplift potential in a major conurbation. Note the local area is classified as very deprived with above-average crime statistics; nearby amenities and several state schools are available, but purchasers should factor in local market demand and refurbishment costs before bidding.
2 bedroom terraced house for sale in 47 Dunsink Road, Aston, Birmingham, B6 6PL, B6 — £50,000 • 2 bed • 1 bath • 877 ft²
2 bedroom terraced house for sale in 87 Rosary Road, Erdington, Birmingham, West Midlands, B23 7RD, B23 — £95,000 • 2 bed • 1 bath • 975 ft²
2 bedroom end of terrace house for sale in 78 Prince of Wales Lane, Kings Heath, Birmingham, B14 4JY, B14 — £95,000 • 2 bed • 1 bath • 909 ft²
3 bedroom semi-detached house for sale in 2 Southgate, Cradley Heath, West Midlands, B64 6AX, B64 — £50,000 • 3 bed • 1 bath • 969 ft²
2 bedroom terraced house for sale in 24 Hillary Street, Walsall, West Midlands, WS2 9BP, WS2 — £25,000 • 2 bed • 1 bath • 883 ft²
3 bedroom semi-detached house for sale in 51 Tansley Road, Great Barr, Birmingham, B44 0DJ, B44 — £49,000 • 3 bed • 1 bath • 894 ft²






















































































































