Auction lot with garden and clear scope for refurbishment and rental or resale uplift.
- Vacant freehold end-terrace, sold at public auction
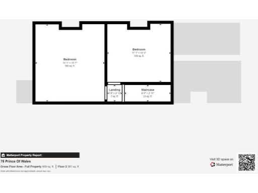
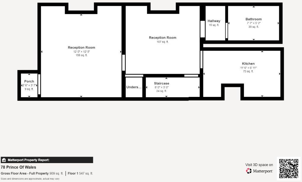
- Two bedrooms, two receptions, approx. 909 sq ft
- Gas central heating and double glazing present
- Small fore and rear gardens; garage potential subject to consent
- Solid brick (pre-1900) walls likely uninsulated
- Possible damp and general cosmetic refurbishment required
- Area classified as deprived with higher local crime levels
- Fast broadband and excellent mobile signal
A vacant freehold Victorian end-terrace offered at auction — attractive to buyers targeting uplift through refurbishment. The property includes two bedrooms, two reception rooms and gardens, with gas central heating and double glazing already in place. At 909 sq ft it is a larger-than-average two-bed layout for the area and sits behind a foregarden with potential for a rear garage or storage subject to consents.
This lot is sold at public auction with a guide price of £95,000; legal pack review and budgeted auction costs are essential before bidding. The building is solid-brick (pre-1900) and likely lacks wall insulation; there is reported possible damp and cosmetic wear throughout, so expect refurbishment works to modernise the interior and improve energy performance (current EPC D).
Location drivers include fast broadband, excellent mobile signal and proximity to local amenities and several schools. Material considerations: the neighbourhood is classified as deprived with higher local crime levels, and surrounding schools show mixed Ofsted ratings. The buyer should factor these social and market factors into rental prospects or resale timing.
This property suits investors or builders seeking a project to add value, or cash-ready buyers comfortable purchasing at auction. The sale is unconditional on the fall of the hammer and includes an administration fee and other costs set out in the legal pack; pre-auction offers may be considered above guide price.
2 bedroom end of terrace house for sale in 4 Ivy Avenue, Off Runcorn Road, Balsall Heath, Birmingham, B12 8RL, B12 — £85,000 • 2 bed • 1 bath • 902 ft²
3 bedroom terraced house for sale in 72 Nineacres Drive, Fordbridge, Birmingham, B37 5DD, B37 — £59,000 • 3 bed • 1 bath • 819 ft²
3 bedroom semi-detached house for sale in 51 Tansley Road, Great Barr, Birmingham, B44 0DJ, B44 — £49,000 • 3 bed • 1 bath • 894 ft²
2 bedroom terraced house for sale in 87 Rosary Road, Erdington, Birmingham, West Midlands, B23 7RD, B23 — £95,000 • 2 bed • 1 bath • 975 ft²
2 bedroom terraced house for sale in 47 Dunsink Road, Aston, Birmingham, B6 6PL, B6 — £50,000 • 2 bed • 1 bath • 877 ft²
3 bedroom terraced house for sale in 111 Vicarage Road, Oldbury, B68 8HU, B68 — £39,000 • 3 bed • 1 bath • 1249 ft²










































