Private, single-storey home with solar, views and low-maintenance garden.
Three-bedroom detached bungalow with principal ensuite and dressing area
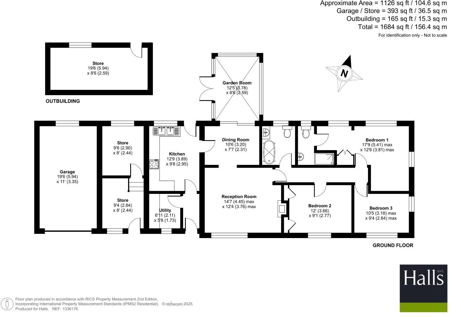
Awelon is a roomy three-bedroom detached bungalow positioned on an elevated plot in the heart of Llanfyllin, yet enjoying a high degree of privacy and far-reaching town and countryside views. The accommodation is arranged on one level and includes a principal bedroom with dressing area and en-suite, two further bedrooms, a refitted family bathroom, lounge with woodburning stove, conservatory and a practical kitchen with adjoining utility room.
The house is equipped with solar PV panels, battery storage and an air source heat pump, plus double glazing, so running costs can be lower than a typical property of this age. Practical extras include a single garage (with inspection pit), off-road parking, cellar and two ancillary rooms suitable for a home office or storage. The rear garden is designed for low maintenance, with paved patio, pergola and planted borders.
There are some straightforward improvement opportunities: the property dates from the mid-20th century and cavity walls are assumed uninsulated, so additional insulation would improve long-term comfort and efficiency. The advertised heating information indicates both an air source heat pump and an oil-fired boiler are present; prospective buyers should check the current heating configuration and servicing history. Council tax is band E (above average) and the wider area is classified as very deprived, which may affect future resale dynamics.
This bungalow will suit buyers looking to downsize or retire to a single-storey home with strong privacy, pleasant views and ready-to-live-in accommodation, but who are also comfortable assessing secondary energy upgrades and local market considerations.
3 bedroom detached bungalow for sale in Llwyn Y Garth, Llanfyllin, SY22 — £431,000 • 3 bed • 2 bath • 1697 ft²
3 bedroom detached bungalow for sale in Pen Y Maes, Llanfechain, SY22 — £330,000 • 3 bed • 1 bath • 926 ft²
4 bedroom bungalow for sale in Llanerfyl, SY21 0EP, SY21 — £425,000 • 4 bed • 2 bath • 1596 ft²
3 bedroom detached house for sale in Bwlch-y-Cibau, Llanfyllin, Powys, SY22 — £500,000 • 3 bed • 3 bath • 2196 ft²
3 bedroom detached bungalow for sale in Orchard Croft, Llandrinio, SY22 — £313,000 • 3 bed • 2 bath • 1098 ft²
3 bedroom detached bungalow for sale in Carreghofa, Llanymynech, SY22 — £360,000 • 3 bed • 2 bath • 1866 ft²














































































































