**Standout Features:**
- Award-winning, Grade II listed farmhouse dating back to 1643
- Fully renovated with modern comforts while retaining character
- Spacious living areas with panoramic countryside views
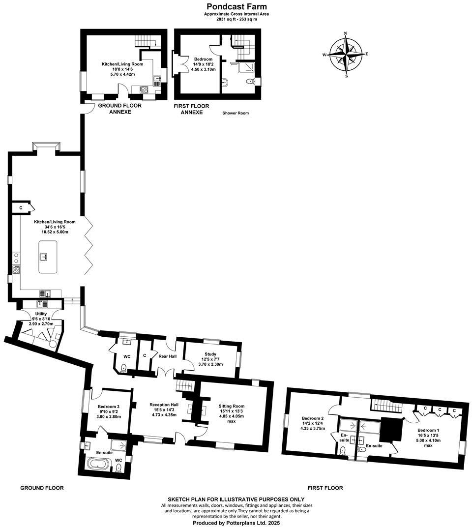
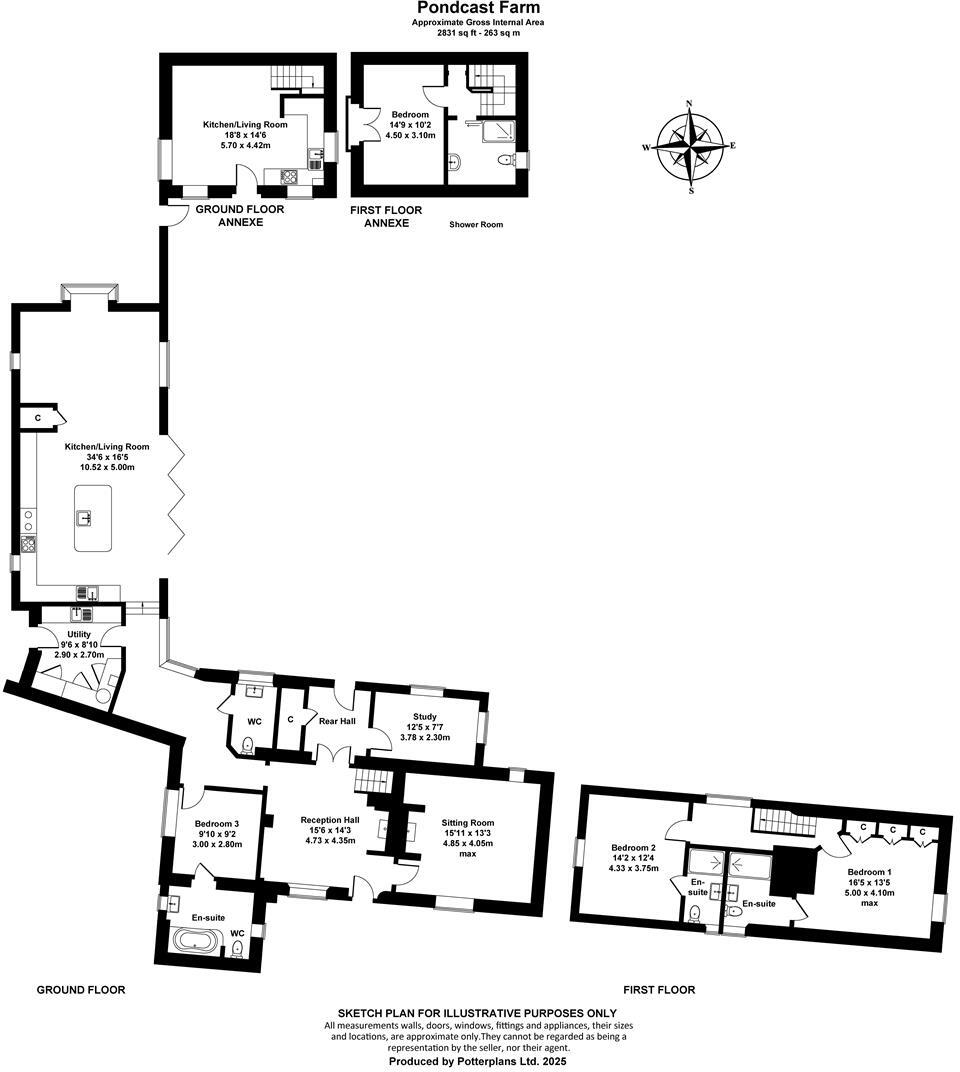
- 4 bedrooms and 4 bathrooms, plus a separate annexe
- Set on an expansive 5.5 acres, with additional 2.75 acres available
- Outbuildings include a workshop, barn, and garage
- Quiet rural location near village amenities and ferry links
Pondcast Farm offers a unique opportunity to own a stunning, award-winning country house situated in the tranquil rural landscape of Havenstreet, Isle of Wight. This beautifully extended and refurbished Grade II listed farmhouse seamlessly blends historic charm with modern luxury. With four spacious bedrooms and four elegantly designed bathrooms, the home features an impressive stone-built extension that boasts an open-plan kitchen/living room equipped with high-quality fittings, highlighted by vaulted ceilings and stunning countryside views.
Surrounded by 5.5 acres of picturesque grounds, the property also includes a versatile annexe and ample outbuildings, providing significant potential for hobbies or rental income. Located just a short distance from local amenities and within reach of transport links, this picturesque estate encapsulates the serenity of rural living while remaining convenient. However, as a Grade II listed property, any renovations or alterations would require careful consideration of planning and regulations.
Ideal for families seeking a peaceful retreat or investors looking for a unique rental opportunity, this property represents a rare find on the market. Don’t miss your chance to embrace an enviable countryside lifestyle—schedule a viewing today!
5 bedroom farm house for sale in Calbourne, PO30 — £1,750,000 • 5 bed • 1 bath • 2460 ft²
5 bedroom farm house for sale in Calbourne, PO30 — £1,395,000 • 5 bed • 1 bath • 2460 ft²
4 bedroom farm house for sale in Atherfield, PO38 — £795,000 • 4 bed • 1 bath • 1614 ft²
5 bedroom farm house for sale in Appuldurcombe Farmhouse, PO38 — £1,095,000 • 5 bed • 2 bath • 4187 ft²
2 bedroom barn conversion for sale in Smallbrook Lane, Ryde, PO33 — £370,000 • 2 bed • 1 bath • 634 ft²
4 bedroom detached house for sale in Yafford, PO30 — £1,395,000 • 4 bed • 3 bath • 5601 ft²


































































































































































