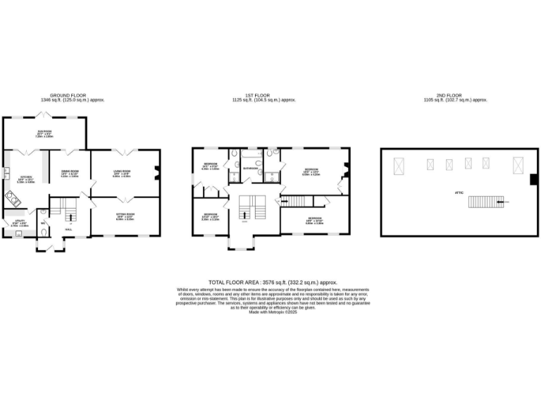
**Standout Features:**
- Charming 4-bedroom stone farmhouse in a stunning rural location.
- Expansive grounds of approximately 7.5 acres, ideal for privacy or agricultural use.
- Two income-generating holiday cottages with no limits on rental days, perfect for investors or personal use.
- Extensive outbuildings with planning permission for conversion into a self-contained annexe.
- Beautifully maintained gardens and terraces with scenic views of Brighstone Downs and The Needles.
**Summary:**
Welcome to Shirleys Farm, a spacious and characterful 4-bedroom stone farmhouse set against the breathtaking backdrop of the Isle of Wight’s National Landscape. This tranquil property features two holiday cottages, generating rental income potential, and extensive grounds ideal for outdoor enthusiasts or those seeking a peaceful retreat. The farmhouse boasts traditional charm, with large living spaces, a farmhouse kitchen, and luxurious sunroom, all bathed in natural light.
Enhance your lifestyle with the property's 1.5 acres of gardens and large paddock, perfect for gardening or livestock. The well-maintained outbuildings provide numerous opportunities for storage or additional living spaces, with extant planning permission for a self-contained annexe, ensuring future flexibility. With average broadband speeds and a freehold title, this property offers an ideal blend of rural tranquillity and investment potential. Don’t miss your chance to own this exclusive estate — such a rare offering may not last long!
5 bedroom farm house for sale in Calbourne, PO30 — £1,750,000 • 5 bed • 1 bath • 2460 ft²
4 bedroom farm house for sale in Atherfield, PO38 — £795,000 • 4 bed • 1 bath • 1614 ft²
5 bedroom farm house for sale in Calbourne, PO30 — £1,395,000 • 5 bed • 1 bath • 2460 ft²
5 bedroom farm house for sale in Appuldurcombe Farmhouse, PO38 — £1,095,000 • 5 bed • 2 bath • 4187 ft²
4 bedroom detached house for sale in Havenstreet, Isle of Wight, PO33 — £1,195,000 • 4 bed • 4 bath • 2831 ft²
4 bedroom house for sale in Brighstone, PO30 — £1,250,000 • 4 bed • 2 bath • 3068 ft²






































































