Decorative period charm with flexible living and generous outdoor space.
Four double bedrooms with large principal rooms and high ceilings
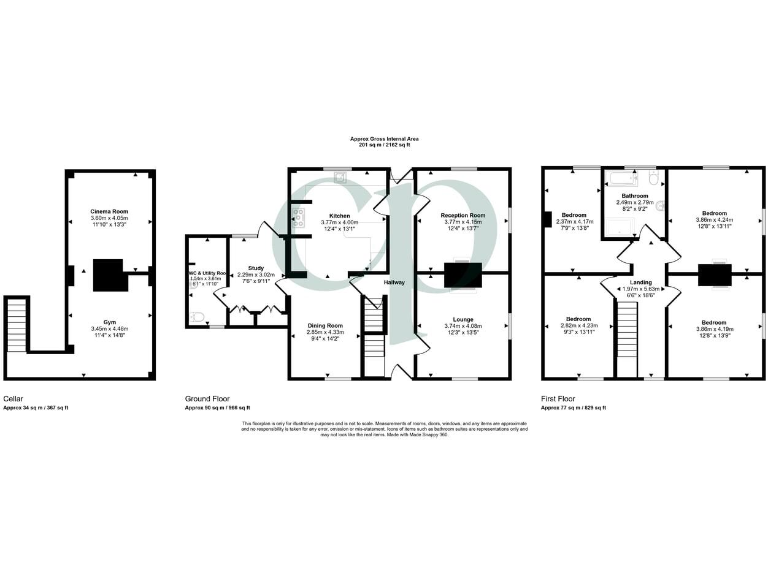
Large kitchen/diner at the heart of the home for family living
Cinema room and separate gym/flexible space on lower ground floor
Two formal gardens and off-street parking for multiple vehicles
Victorian sash windows and original fireplaces retained throughout
Solid brick walls likely without insulation (pre-1900 construction)
Single family bathroom serving four bedrooms — potential need for extra facilities
Local broadband and mobile signal are average; council tax is quite expensive
Cliff House is a distinguished Victorian double-fronted residence set just a short stroll from Ashwell village centre and the Ashwell Springs. The house combines preserved period features—sash windows, high ceilings and feature fireplaces—with generous, well-proportioned living spaces for modern family life. The ground floor layout includes two formal reception rooms, a large kitchen/diner and a handy office with garden access, creating practical flow for daily living and entertaining.
The lower ground floor provides a cinema room and a separate space currently used as a gym, offering flexible accommodation for indoor hobbies or a home office. Outside, the property benefits from two formal gardens and off-street parking for multiple vehicles, rare for village locations. The house is one of only four grand period homes in Ashwell, occupying an elevated corner position with mature planting to the boundaries for privacy.
Buyers should note a few material points: the property’s solid brick walls are understood to have no added insulation (typical of pre-1900 construction), and there is a single family bathroom serving four double bedrooms. Broadband and mobile signal are average locally, and council tax is described as quite expensive. These are practical considerations for families seeking long-term running costs and connectivity.
Overall, this is a substantial family home that delivers period character, flexible living spaces and generous gardens in a highly desirable Hertfordshire village. It will particularly suit buyers who appreciate original features and who may wish to carry out sympathetic upgrades (insulation, additional bathroom) to customise the home to contemporary standards.
6 bedroom semi-detached house for sale in High Street, Ashwell, Baldock, Hertfordshire, SG7 — £1,500,000 • 6 bed • 5 bath • 3700 ft²
5 bedroom detached house for sale in Ashwell, SG7 — £1,850,000 • 5 bed • 3 bath • 3369 ft²
4 bedroom terraced house for sale in Angells Meadow, Ashwell, Baldock, SG7 — £525,000 • 4 bed • 1 bath • 1070 ft²
4 bedroom detached house for sale in Ashwell Street, Ashwell, SG7 — £1,100,000 • 4 bed • 2 bath • 2000 ft²
4 bedroom end of terrace house for sale in Mount Pleasant, Hertford Heath, SG13 — £800,000 • 4 bed • 2 bath • 1922 ft²
3 bedroom detached house for sale in Broad Street, Clifton, Clifton , SG17 — £595,000 • 3 bed • 2 bath • 1208 ft²






































































































