Contemporary move-in ready apartment ideal for first-time buyers and professionals.
NO ONWARD CHAIN — ready to move in
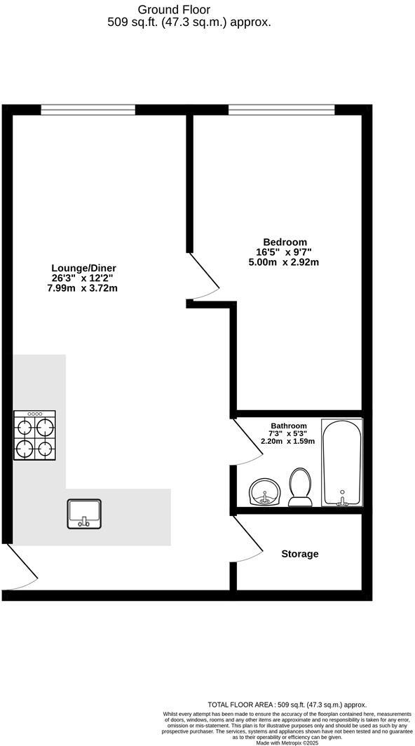
Large double bedroom with full-length windows
Open-plan lounge/diner/kitchen with integrated appliances
Newly renovated with bespoke contemporary fittings
On-site communal gym and secure communal entrance
Leasehold with c.248 years remaining
Service charge c. £2,300 (average) — factor into running costs
Electric room heaters; EPC C — potential higher heating costs
A bright, newly renovated one-bedroom apartment in the heart of York, offered chain-free and ready to move into. Set within the contemporary Icona II development on Eboracum Way, the flat benefits from generous open-plan living, bespoke fittings and large windows that flood the space with light. Communal amenities include a secure entrance and an on-site gym, useful for city-centre living without extra travel.
The layout suits a first-time buyer or professional couple seeking low-maintenance urban accommodation. The double bedroom is large for a one-bed and the open-plan lounge/diner/kitchen gives flexible living and entertaining space. A substantial storage cupboard helps with practical day-to-day needs.
Buyers should note this is a leasehold apartment with about 248 years remaining and an average service charge of £2,300. Heating is by electric room heaters and the EPC is rated C, so running costs could be higher than gas-heated properties. There is no private outdoor space shown.
Overall, this is a modern, well-specified city-centre home that minimizes renovation work and offers immediate occupation. It represents a straightforward option for someone prioritising location, contemporary finishes and communal facilities, provided they are comfortable with leasehold ownership and the quoted service charge.
1 bedroom apartment for sale in Eboracum Way, York, YO31 — £325,000 • 1 bed • 1 bath • 613 ft²
1 bedroom apartment for sale in City Gate, Layerthorpe, York, YO31 7TZ, YO31 — £270,000 • 1 bed • 1 bath • 546 ft²
2 bedroom apartment for sale in City Gate, Icona 2, Eboracum Way, York, North Yorkshire, YO31 — £395,000 • 2 bed • 2 bath • 701 ft²
1 bedroom apartment for sale in Market Street, York, YO1 — £180,000 • 1 bed • 1 bath • 460 ft²
2 bedroom apartment for sale in Eboracum Way, York, North Yorkshire, YO31 — £599,999 • 2 bed • 2 bath • 670 ft²
1 bedroom apartment for sale in Cocoa Works, Haxby Road, YO31 — £250,000 • 1 bed • 1 bath • 548 ft²


































