Compact, bright apartment ideal for first-time buyers or investors close to shops.
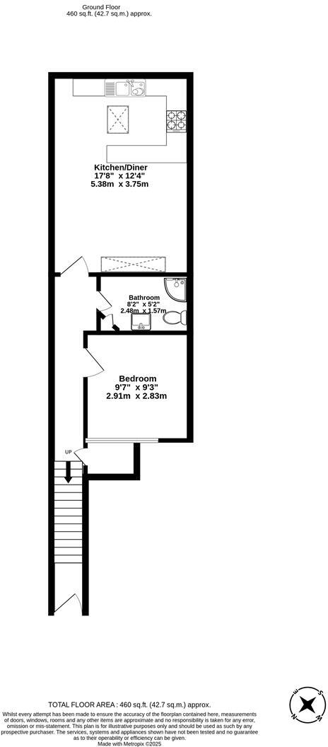
Top-floor one-bedroom apartment, approx. 460 sqft
A compact, light-filled top-floor apartment in the heart of York city centre, sold chain-free and offered with a very long lease (998 years). The open-plan living/kitchen has high ceilings, Velux windows and integrated appliances, creating a bright, modern living space well suited to a single occupant or a rental let. Council tax is low (Band A) and mobile signal is excellent.
This property sits between Coney Street and Parliament Street, with shops, cafés and restaurants on the doorstep — ideal for first-time buyers wanting central living or investors seeking a city-centre tenancy. The apartment’s size (approx. 460 sq ft) and layout suit someone seeking a compact, convenient home or a straightforward buy-to-let opportunity.
Buyers should note the central location brings busy, pedestrianised streets and higher local crime levels; the area classification shows a cosmopolitan, student-oriented neighbourhood. The building is Victorian with solid brick walls (likely without cavity insulation) and secondary glazing in place. The EPC is D, and some thermal and sound improvements could be beneficial.
Overall this is a practical, low-maintenance entry into York’s property market: chain-free with a near-millennium lease and good rental potential, but with city-centre trade-offs such as noise, higher crime figures and some scope for energy and comfort upgrades.
1 bedroom apartment for sale in Apartment 11 Castle Chambers, Clifford Street York, YO1 9RG, YO1 — £230,000 • 1 bed • 1 bath • 431 ft²
1 bedroom apartment for sale in Apartment 1 Castle Chambers, Clifford Street, York, YO1 9RG, YO1 — £250,000 • 1 bed • 1 bath • 517 ft²
2 bedroom apartment for sale in Stonegate Court, Blake Street, York, North Yorkshire, YO1 — £530,000 • 2 bed • 2 bath • 1331 ft²
2 bedroom apartment for sale in Apartment 22 Castle Chambers, Clifford Street, York, YO1 9RG, YO1 — £295,000 • 2 bed • 1 bath • 732 ft²
1 bedroom flat for sale in Rowntree House, York, YO1 — £245,000 • 1 bed • 1 bath • 339 ft²
1 bedroom apartment for sale in Apartment 2 Castle Chambers, Clifford Street, York, YO1 9RG, YO1 — £225,000 • 1 bed • 1 bath • 431 ft²










































