Four bedroom detached with garden and NHBC warranty near village amenities.
Approximately 2,314 sq ft of living space across multiple levels
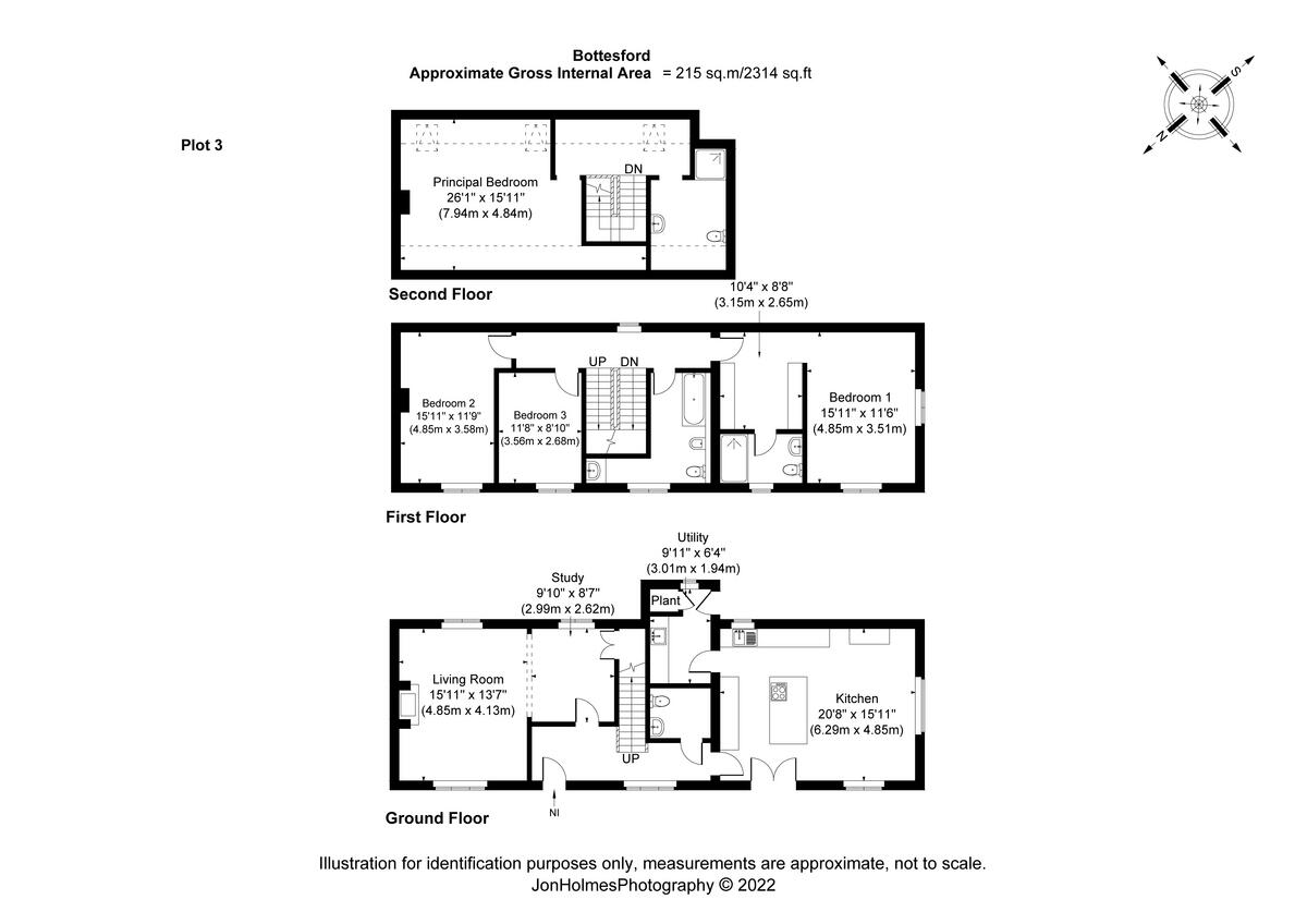
Set in the heart of Bottesford, this recently built four-bedroom detached home offers generous family living across approximately 2,314 sq ft. The house combines traditional brick character with modern finishes, landscaped gardens and off-street parking, making it ready to move into for families who want space and low-maintenance grounds.
Internally the layout spans multiple levels and includes three bathrooms, well-proportioned rooms and underfloor heating served by an air-source heat pump for efficient warmth. The property benefits from a 10-year NHBC warranty and contemporary double glazing, while the large plot provides scope for play space, entertaining or modest garden improvements.
The village location is a strong practical draw: amenities, pubs, shops and bus links are within walking distance, and several nearby primary and secondary schools hold Good Ofsted ratings. Broadband speeds are average but mobile signal is excellent; buyers should note the main fuel is electricity (tariff unspecified).
Important considerations: the area has a medium flood risk — buyers should obtain local flood advice and appropriate insurance. The home was constructed in 2022 and is freehold, with very affluent surroundings and generally low local crime levels. Overall this is a spacious, modern family house in a sought-after village setting, best suited to those seeking quality new-build accommodation with nearby schools and amenities.
4 bedroom detached house for sale in Grantham Road, Bottesford, NG13 — £635,000 • 4 bed • 3 bath • 2300 ft²
3 bedroom detached house for sale in Calcraft Drive, Bottesford, NG13 — £375,000 • 3 bed • 3 bath • 1228 ft²
4 bedroom detached house for sale in Calcraft Drive, Bottesford, NG13 — £585,000 • 4 bed • 3 bath • 1876 ft²
4 bedroom detached house for sale in Ash Grove, Bottesford, NG13 — £415,000 • 4 bed • 2 bath • 1400 ft²
3 bedroom detached house for sale in Palmer Avenue, Bottesford, Nottinghamshire, NG13 — £340,000 • 3 bed • 2 bath • 987 ft²
3 bedroom detached house for sale in Easthorpe Road, Bottesford, Nottinghamshire, NG13 — £390,000 • 3 bed • 1 bath • 1291 ft²














































































