LL15 1AF - Commercial property for sale in Well Street, Ruthin, LL15

View on Property Piper

Commercial property for sale in Well Street, Ruthin, LL15

Summary - 55 Well Street, Ruthin, Denbighshire, LL15 1AF LL15 1AF

1 bed 1 bath Commercial Property

Central mixed-use Georgian property with flexible lets and utilities included.
Prominent town-centre Georgian building with strong street frontage
Private access from covered mall; high pedestrian visibility
Two upper-floor office suites available to let; utilities included
Rents advertised from £260 pcm; second-floor suite noted £550 pcm
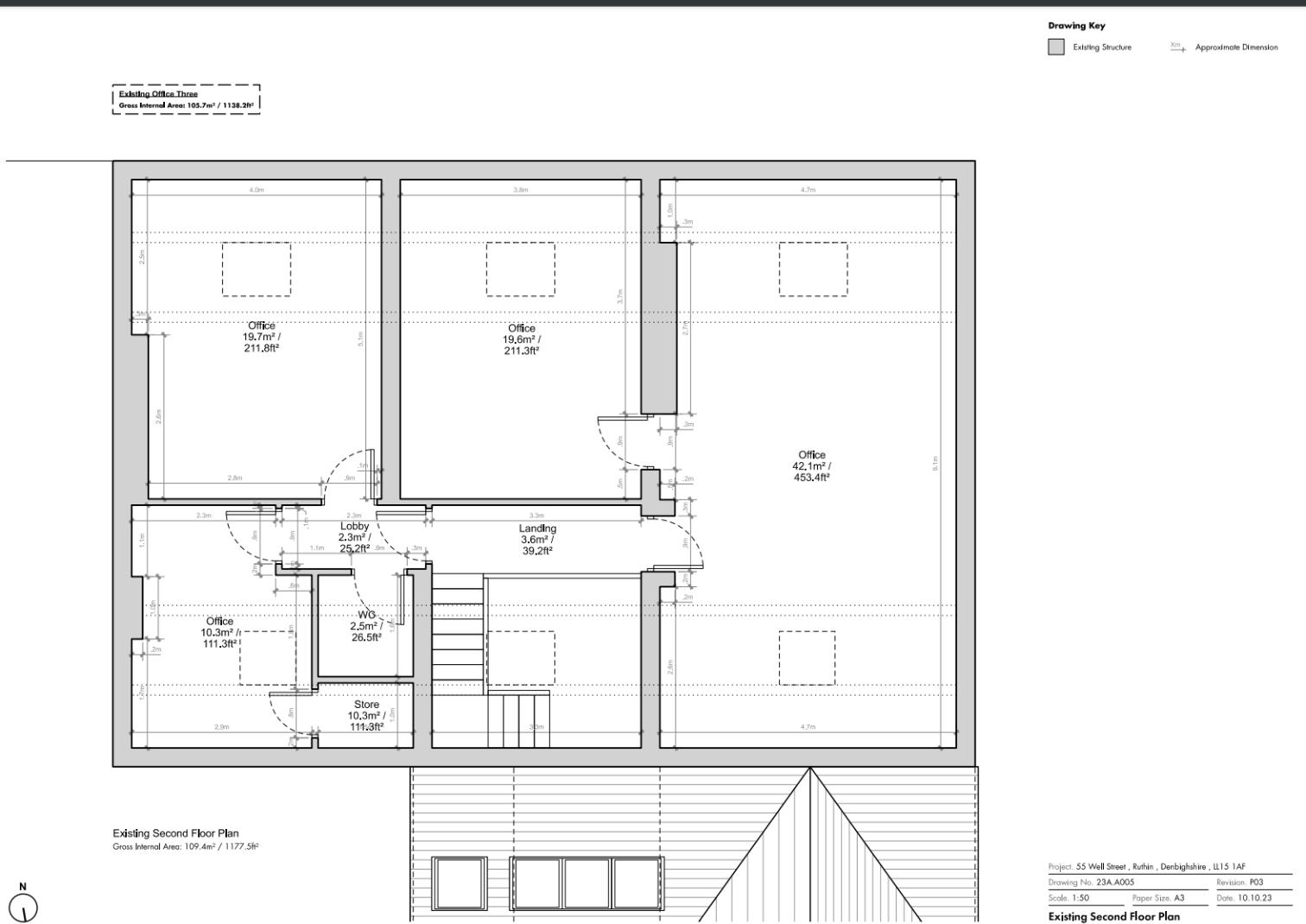
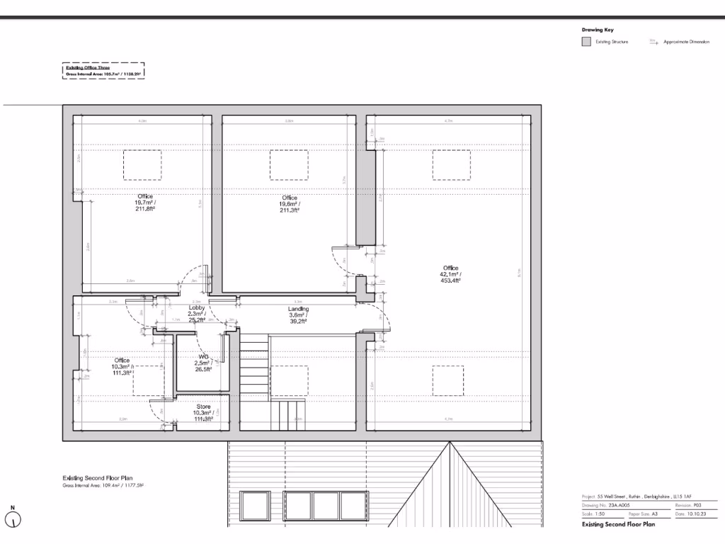
Large overall footprint ~3,653 sq ft; high ceilings and large rooms
No external amenity or garden; upper floors only access via internal stair
Area classified very deprived with above-average crime rates
Period building likely needs internal refurbishment or conversion consents
This prominent Georgian mixed-use building on the junction of Well Street and Station Road offers clear income and occupation flexibility. Ground-floor retail units benefit from strong street frontage while two upper-floor office suites are available to let with utilities and fibre included in the rent. Flexible contract terms suit short-term lets or rolling tenancies.

The property includes high ceilings, large rooms and a substantial overall footprint (approximately 3,653 sq ft across upper and lower floors), presenting straightforward potential for continued commercial use or partial residential conversion subject to consents. Rents are competitive, with office suites advertised from £260 pcm (one second-floor suite noted from £550 pcm) inclusive of electricity, water and broadband—useful for a turnkey letting proposition.

Notable constraints are factual and should guide buyer planning: the area is classified as very deprived and records above-average crime rates, and there is no external amenity or garden. The building appears to be period stock and may require internal refurbishment or service upgrades before re-letting or conversion; council tax position and any conversion consents should be checked. These factors make the property best suited to investors or small businesses seeking central, high-visibility premises with flexible leasing options.

Property Details

Brochure Descriptions

Image Descriptions

Floorplan Description

Rooms

Textual Property Features

Target Audience

AI Tags

Detected Visual Features

Nearest Bars And Restaurants

,,,,}

Nearest General Shops

,,}

Nearest Grocery shops

,,}

Nearest Supermarkets

,,}

Nearest Religious buildings

,,}

Nearest Medical buildings

,,,}

Nearest Airports

}

Nearest Leisure Facilities

,,,,}

Nearest Tourist attractions

,,}

Nearest Train stations

,,,,}

Nearest Bus stations and stops

,,,,}

Nearest Hotels

,,}

Tags

Local Market Stats

AirBnB Data

Similar Properties

Meta

High Res Images

Compatible Images

Low res Images

Thumbnails

Raw Images

High Res Floorplan Images

Compatible Floorplan Images

Low res Floorplan Images

FloorplanImages Thumbnail

Raw Floorplan Images