Spacious contemporary home with private west-facing garden near Bearsden Cross.
Architect-designed detached villa over two principal levels
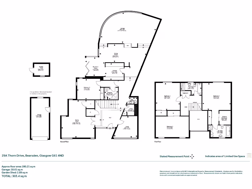
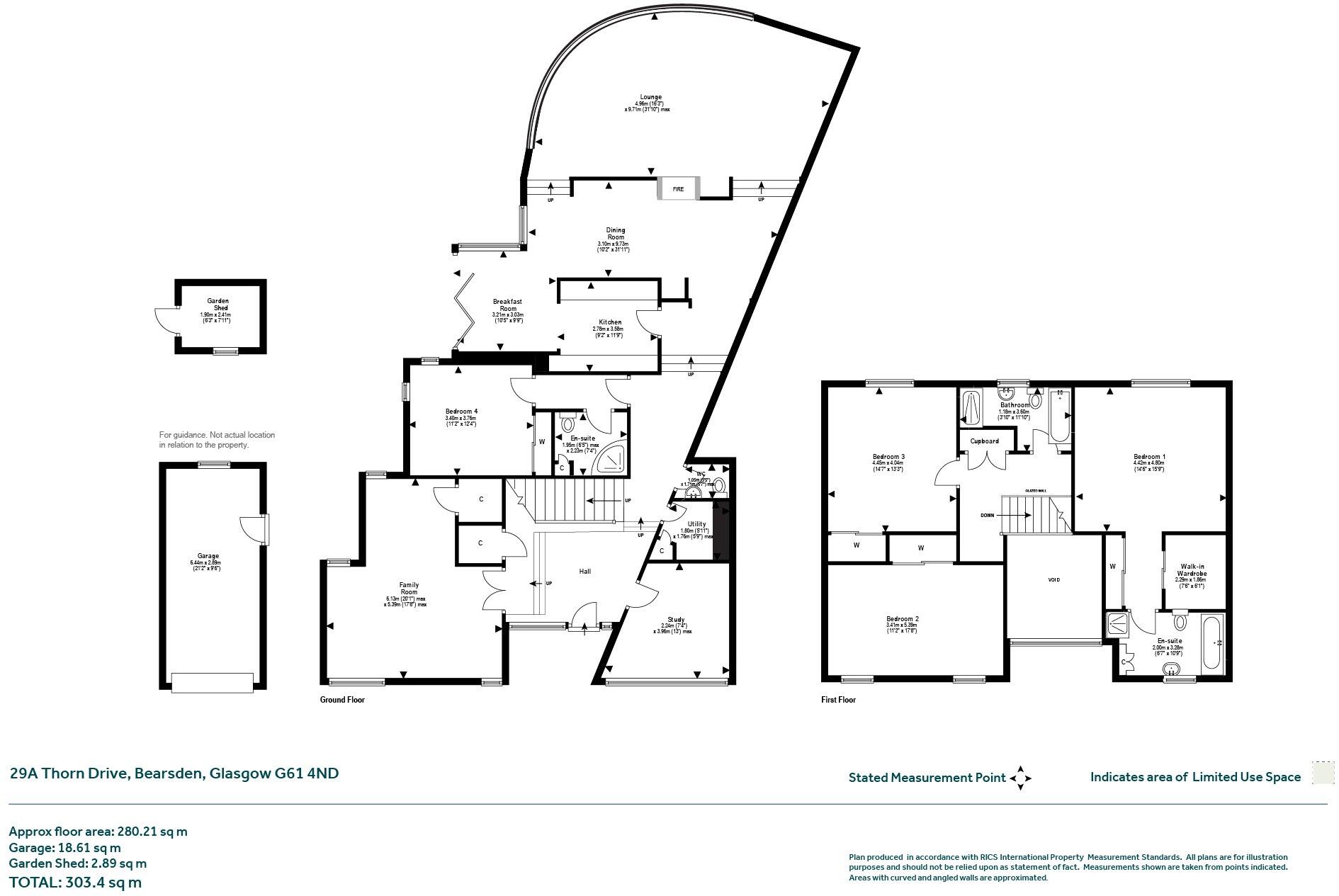
An architect-designed four-bedroom detached villa offering more than 3,000 ft² of carefully considered contemporary living in Bearsden’s desirable Thorn district. The home’s standout features include a dramatic double-height entrance, a curved rear elevation with large windows, and generous room proportions across two principal levels — ideal for family life, home working and entertaining. The private, west-facing garden captures afternoon and evening sun and is complemented by gated driveway parking and a detached garage.
Positioned under a mile from Bearsden Cross, the house is within easy walking distance of shops, cafés, rail links to Glasgow and strong local schools. Practical details include a utility room, cloakroom, two ensuite shower rooms plus a family bathroom, an EPC rating of C and freehold tenure. Mobile signal and broadband speeds are reported as excellent and fast respectively.
Buyers should note two important factual points: Council Tax is high (Band G), and official data flags the area as deprived despite the property’s affluent immediate setting and close-by amenities. There is no flood risk recorded. This is a substantial, architecturally distinct family home for those who prioritise space, privacy and contemporary design, but buyers should factor the running costs and local data into their decision.
3 bedroom detached house for sale in Westbourne Drive, Bearsden, G61 — £415,000 • 3 bed • 2 bath • 1345 ft²
4 bedroom semi-detached house for sale in 9 Thorn Drive, Bearsden, G61 4ND, G61 — £765,000 • 4 bed • 2 bath • 2024 ft²
3 bedroom detached house for sale in Upper Glenburn Road, Bearsden, Glasgow, East Dunbartonshire, G61 — £740,000 • 3 bed • 2 bath • 1835 ft²
4 bedroom detached house for sale in Boclair Crescent, Bearsden, G61 — £795,000 • 4 bed • 3 bath • 3034 ft²
4 bedroom detached house for sale in Fernlea, Bearsden, G61 — £435,000 • 4 bed • 3 bath • 1518 ft²
4 bedroom detached house for sale in Birnam Crescent, Bearsden, G61 — £410,000 • 4 bed • 2 bath • 1636 ft²






























































































































































































