Chain-free two-bed with Elizabeth Line access and clear update potential..
Chain free two-bedroom first-floor apartment
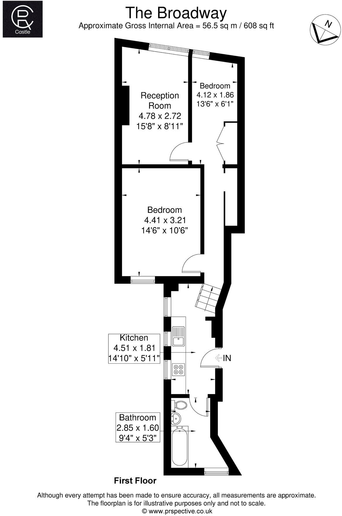
This bright two-bedroom first-floor apartment offers practical living space (around 600 sq ft) with excellent transport links via the Elizabeth Line at Hanwell. The property is chain free and suited to first-time buyers or investors seeking a straightforward purchase with scope to add value.
Set in a Victorian mid-terrace above retail units, the flat retains period character and benefits from high ceilings and large sash-style windows that flood the rooms with light. Accommodation includes a separate reception room, galley kitchen and modern bathroom, plus a shared rear courtyard and private storage.
The apartment requires renovation and cosmetic updating throughout, presenting an opportunity to personalise finishes and increase value. Note the property is leasehold, in a solid-brick building assumed to lack wall insulation, and while double glazing was installed after 2002 the heating is via a mains-gas boiler and radiators. Broadband speeds are average.
Buyers should be aware of local challenges: the area is classified as deprived and local crime levels are very high, which may affect rental demand and resale considerations. That said, nearby outstanding and good schools, abundant local shops and the fast Elizabeth Line connections make this a practical, well-connected prospect for owner-occupiers or investors prepared to invest in improvements.
2 bedroom apartment for sale in Osterley Park View Road, Hanwell, LONDON, W7 — £375,000 • 2 bed • 1 bath • 572 ft²
1 bedroom flat for sale in Station Road, Hanwell, London, W7 3JD, W7 — £349,950 • 1 bed • 1 bath • 565 ft²
2 bedroom apartment for sale in Uxbridge Road, London, W7 — £375,000 • 2 bed • 1 bath • 579 ft²
1 bedroom apartment for sale in Osterley Park View Road, Hanwell, W7 — £350,000 • 1 bed • 1 bath • 521 ft²
2 bedroom flat for sale in Studley Grange Road, London, W7 — £325,000 • 2 bed • 1 bath • 492 ft²
2 bedroom flat for sale in Silverdale Close, Hanwell, W7 — £325,000 • 2 bed • 1 bath • 677 ft²


































