Freehold rural site with planning for six holiday chalets and strong rental potential.
Planning granted for six 2-bed, 2-bath timber holiday chalets (SMD/2008/1104)
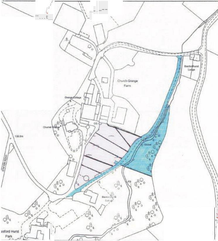
Approximately 2.67 acres with mature tree belts and woodland backdrop
Footings and bases in place; shell of one lodge erected
Freehold title; no flood risk; low local crime
Very slow broadband—consider connectivity upgrade costs
Excellent mobile signal; good for holiday guests using phones
Close to Leek, Caldon Canal and heritage steam railway (tourism draw)
Plots available individually from £90k–£125k; whole site £500k
A rare freehold development site in Churnet Grange with planning permission for six timber holiday chalets. Planning (SMD/2008/1104) allows six two-bedroom, two-bathroom chalets for holiday accommodation; footings and bases are in place and the shell of one lodge is erected. The site sits in about 2.67 acres of predominantly grassed land with mature tree belts and immediate woodland, offering seclusion and strong countryside outlooks. Hoeseasons reportedly expressed interest in letting completed units, indicating good short‑term rental potential, though buyers should verify that separately.
The location is quietly rural yet only a five-minute drive from Leek and within walking distance of the Caldon Canal and heritage steam railway, supporting visitor demand. The site is freehold, has excellent mobile signal, no flood risk and low crime, making it suitable for holiday use. Very slow broadband is a material limitation for year-round occupation or high‑expectation guests; purchasers should factor in connectivity upgrades if important.
Existing hardstandings, access tracks and partially built bases reduce initial groundwork costs, but the incomplete units will require capital to finish to lettable standard. Prospective buyers should carry out their own planning and building enquiries, obtain updated cost estimates and confirm any operator interest. The sale offers flexibility: plots may be bought individually (from £90,000–£125,000) or as a whole (available for £500,000).
Land for sale in Development Land at Thorncliffe, Leek, ST13 — £225,000 • 1 bed • 1 bath • 2139 ft²
2 bedroom lodge for sale in Leek, Staffordshire, ST13 — £74,995 • 2 bed • 1 bath • 456 ft²
Land for sale in Land Off Church Lane, Newcastle-under-Lyme ST5 6EB, ST5 — £550,000 • 5 bed • 1 bath
Land for sale in Land off Gravelly Bank, Stoke-on-Trent, ST3 — £395,000 • 5 bed • 2 bath
8 bedroom house for sale in South Hillswood, Meerbrook, Leek, ST13 — £1,500,000 • 8 bed • 6 bath • 2830 ft²
Land for sale in Land to the North West of Grindley Lane, Blythe Bridge, Stoke on Trent, ST3 — £70,000 • 1 bed • 1 bath


















































































