Characterful one-bedroom flat with private roof terrace, minutes from Zone 2 transport..
Top-floor one-bedroom flat with private roof terrace
Minutes from Willesden Green Zone 2 station, excellent transport links
Character features: vaulted ceiling, exposed brick, wood-burning stove
Solid brick walls; assumed no insulation — Energy Rating D
Share of freehold tenure; furnished conversion, ready to occupy
Permit parking; council tax Band C (affordable)
Area records higher crime and deprivation; consider local security
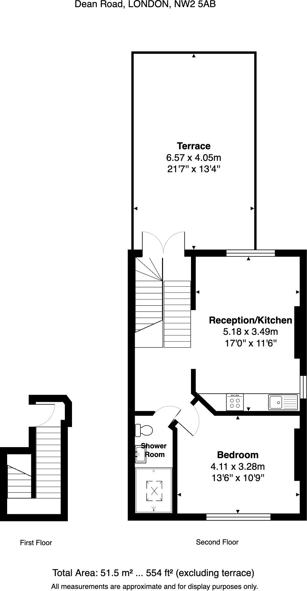
517 sq ft (average size); mains gas central heating, double glazing
This top-floor one-bedroom flat offers a bright living space and a private roof terrace, minutes from Willesden Green Zone 2 station. The 517 sq ft accommodation includes a double bedroom with storage, a fitted kitchen and a stylish bathroom — suited to first-time buyers seeking a ready-to-move-in city base with outdoor space.
Interior character stands out: vaulted ceilings, exposed brick and rustic wood flooring give the living room a cosy, cottage-like feel, complete with a wood-burning stove. Double glazing was installed post-2002 and the property is sold furnished as a conversion, useful for buyers wanting a straightforward move-in.
Practical details: the flat benefits from mains gas central heating via boiler and radiators, council tax band C (affordable) and permit parking. Tenure is share of freehold, which can be attractive for control over building matters compared with a typical leasehold flat.
Notable drawbacks are factual and important to consider. The building’s solid brick walls are assumed uninsulated, contributing to an Energy Rating D and potentially higher heating costs. The local area records higher crime levels and is classified as deprived, which may affect resale expectations and day-to-day feel. Buyers should inspect communal security and consider energy-improvement costs.
Overall, this is a characterful, well-located one-bedroom with private outdoor space and simple ownership terms. It suits buyers who prioritise transport links, outdoor roof space and period character, and who are prepared to assess/upgrade energy performance and local security if desired.
2 bedroom flat for sale in Chatsworth Road, Willesden, London, NW2 — £400,000 • 2 bed • 1 bath • 685 ft²
1 bedroom flat for sale in Heathfield Park, London, NW2 — £495,000 • 1 bed • 1 bath • 700 ft²
1 bedroom flat for sale in Harrow Road, College Park, London, NW10 — £350,000 • 1 bed • 1 bath • 519 ft²
2 bedroom flat for sale in Chatsworth Road, Willesden Green, NW2 — £625,000 • 2 bed • 1 bath • 815 ft²
3 bedroom duplex for sale in Dean Road II, London NW2 — £1,050,000 • 3 bed • 2 bath • 1366 ft²
3 bedroom flat for sale in Minet Avenue, Harlesden, NW10 — £550,000 • 3 bed • 2 bath • 1077 ft²






























