**Standout Features:**
- **Large Plot**: 1.2 acres with landscaped grounds.
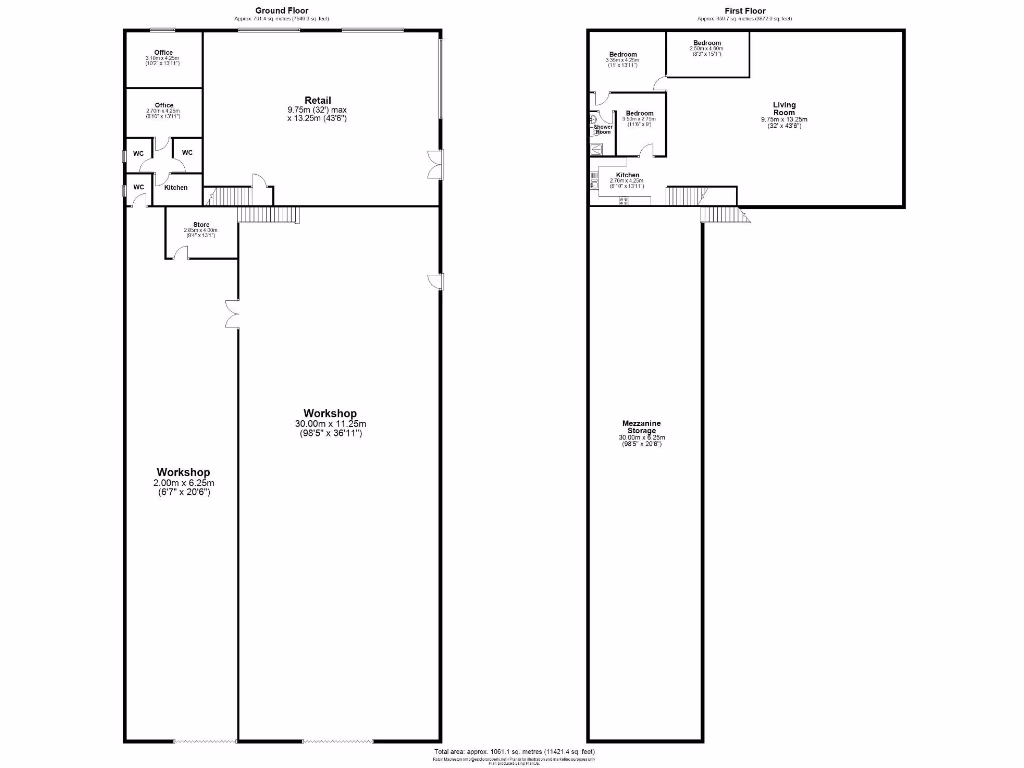
- **Versatile Space**: 7,750 sq.ft light industrial unit with a 1,937 sq.ft two-bedroom apartment.
- **Ample Parking**: Spacious gravel parking area to accommodate visitors and staff.
- **Mezzanine Storage**: Additional 1,722 sq.ft storage space above the workshop area.
- **Established Business**: Current usage includes a profitable gun shop and archery range, with potential for continued operation.
- **Location**: Located near North Kelsey Moor, approximately three miles from Caistor Town Centre.
**Summary:**
Seize this rare opportunity to own a well-established light industrial unit with a wealth of potential for various business ventures. Situated on a generous 1.2-acre plot, this property boasts a spacious 7,750 sq.ft footprint, including a versatile retail space complemented by extensive workshop areas suitable for industrial applications. Above, a charming two-bedroom apartment offers comfort and convenience, ideal for on-site living or accommodating staff.
The property's layout features high ceilings and open spaces, enriched by natural light—perfect for retail, craft work, or storage. The exterior comes with ample parking and landscaped grounds, creating an inviting atmosphere for both customers and employees. While the area is generally quiet, its location allows for ease of access to local amenities and transport links. With an EPC rating of D and low council tax costs, this property presents an enticing balance of functional space and home-like comfort, making it particularly appealing for families or investors looking for a dual-use investment.
**Potential Downsides:**
While generally in good condition, potential buyers should be aware of the need for some maintenance due to the property's age and current oil fuel heating system. The broadband speeds are noted as slow, which may not suit all business operations.
Act fast—properties with such versatile potential and established operations don't come on the market often!
Light industrial facility for sale in Units 1 & 2 Rutland Road , Scunthorpe, North Lincolnshire , DN16 — £475,000 • 1 bed • 1 bath
Warehouse for sale in Unit 10 Stirlin Court, Saxilby Enterprise Park, Skellingthorpe Road, Saxilby, Lincoln, Lincolnshire, LN1 — £575,000 • 1 bed • 1 bath • 9000 ft²
Light industrial facility for sale in Armstrong Street, West Marsh Industrial Estate, Grimsby, North East Lincolnshire, DN31 — £375,000 • 1 bed • 1 bath • 7621 ft²
Light industrial facility for sale in Tillbridge Lane , Stow Park, Lincoln, Lincolnshire, LN1 — £649,000 • 1 bed • 1 bath • 3000 ft²
Industrial development for sale in Wilton Road, Industrial Estate, Humberston, Wilton Road, Humberston, Grimsby, DN36 4AW, DN36 — £395,000 • 1 bed • 1 bath • 3515 ft²
Workshop for sale in Station Road, DN9 — £275,000 • 1 bed • 1 bath • 728 ft²


















































































