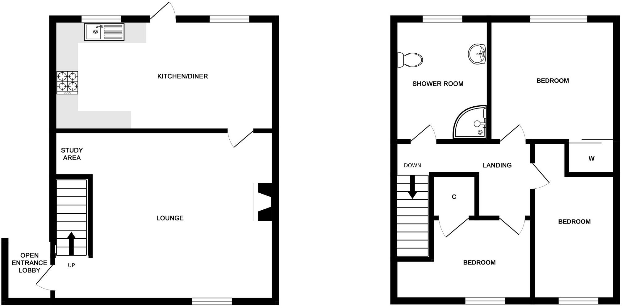
**Standout Features:**
- End-terrace property with stunning mountain and countryside views
- Spacious lounge with wood-burning stove and study area
- Large kitchen/diner with modern cabinetry and ample storage
- Three well-sized bedrooms with built-in wardrobes
- Contemporary, fully renovated shower room
- Generous private garden and off-street parking
- Close proximity to local amenities and schools
**Potential Drawbacks:**
- EPC Rating: F 32, indicating energy efficiency concerns
- Garden currently requires maintenance due to neglect
Nestled in the charming village of Caol, 9 Mackay Crescent is an inviting end-terrace home that brings together comfort, modern design, and potential. This well-maintained property boasts a welcoming lounge with a cozy wood-burning stove and a dedicated study area, perfect for working from home. The large kitchen/diner is equipped with contemporary fittings and opens up to a generous private garden—ideal for family gatherings or outdoor relaxation.
With three sizable bedrooms and a newly modernized shower room, the home adapts well to family living or serves as a lucrative investment opportunity in a robust rental market. Although the garden needs some TLC, the property's prime location, just minutes from Fort William, offers a blend of community amenities and breathtaking outdoor activities, making it a perfect fit for families or those seeking a serene living environment. Don’t miss your chance to secure this attractive property with great renovation potential and future comforts!
3 bedroom terraced house for sale in 4 Camaghael Road, Fort William, PH33 7HX, PH33 — £180,000 • 3 bed • 1 bath • 872 ft²
3 bedroom end of terrace house for sale in Mackay Crescent, Caol, PH33 — £180,000 • 3 bed • 1 bath • 799 ft²
3 bedroom terraced house for sale in 5 Arkaig Crescent, Caol, Fort William, PH33 7BH, PH33 — £170,000 • 3 bed • 1 bath • 990 ft²
5 bedroom semi-detached house for sale in 113 Kilmallie Road, Caol, Fort William, PH33 7DX, PH33 — £245,000 • 5 bed • 2 bath • 1345 ft²
3 bedroom end of terrace house for sale in 46 Camesky Road, Caol, Fort William, PH33 — £155,000 • 3 bed • 1 bath • 936 ft²
3 bedroom end of terrace house for sale in 18 Glenkingie Terrace, Caol, Fort William, PH33 — £180,000 • 3 bed • 1 bath • 968 ft²


































































































































