Three-bedroom family house with garden and flexible studio space.
Built in 2019 by Michael Shanly Homes, modern specification
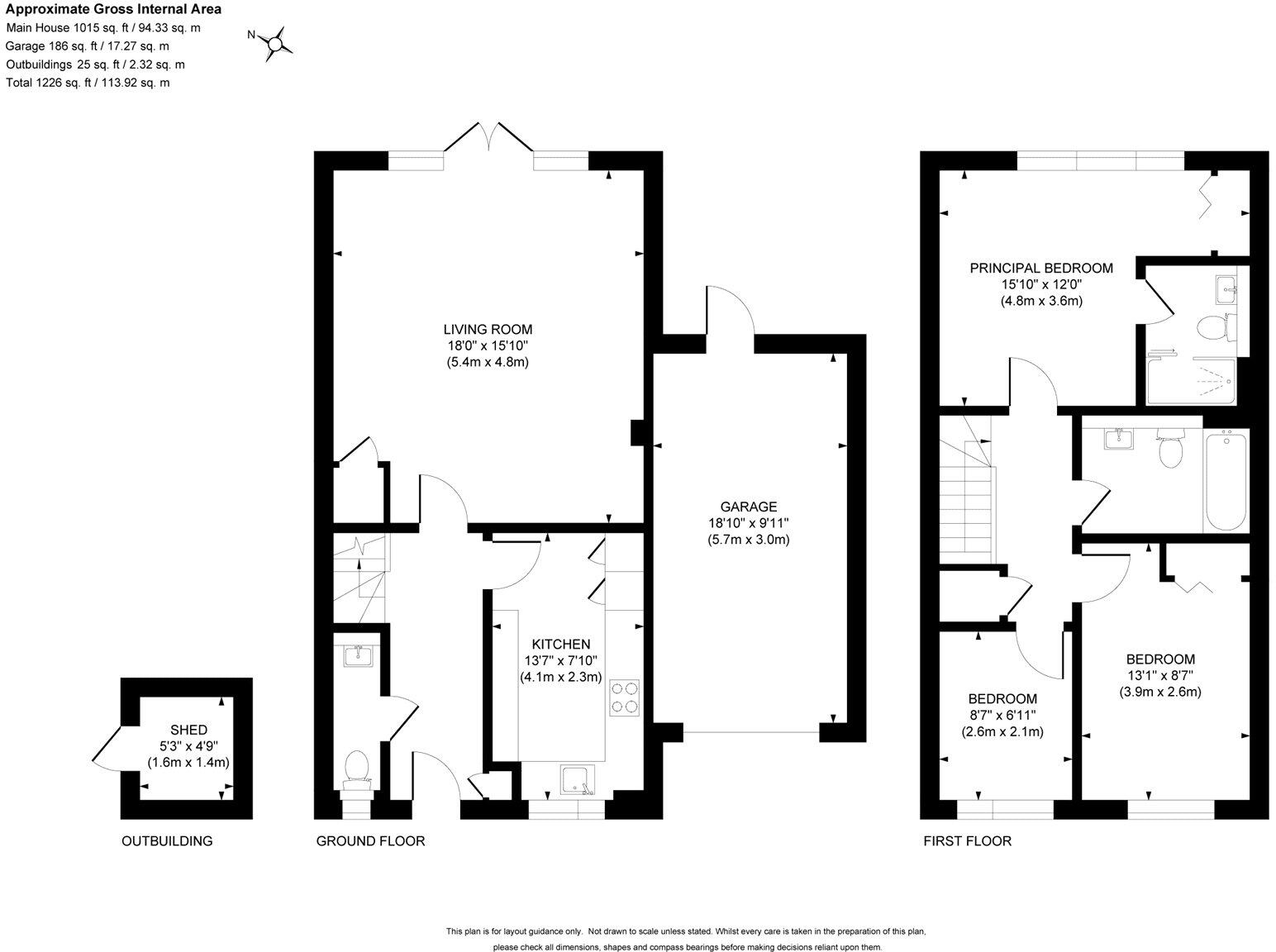
Built in 2019 by Michael Shanly Homes, this three-bedroom semi-detached house offers modern family living with considered specification throughout. The ground floor features a generous living/dining room that opens to a neat rear garden, plus a grey shaker kitchen fitted with Siemens appliances — a practical layout for everyday family life and entertaining.
Upstairs are three bedrooms, the principal with an ensuite and built-in wardrobes; the family bathroom also benefits from underfloor heating. The property is well insulated and gas centrally heated via a boiler housed in the garage/studio, giving comfortable year-round living and low running surprises.
Outside there is a driveway and an attached garage that has been partially converted into a studio space. This conversion creates useful flexible space but reduces internal garage storage and vehicle capacity. The home is freehold, sits in a quiet cul-de-sac in West End, and benefits from nearby schools including the highly regarded Gordon’s School and easy access to Junction 3 of the M3.
Practical considerations: an annual estate charge of £303.59 applies and council tax sits above average. Overall this is a modern, low-maintenance family home with useful extra space and straightforward scope for personalization.
3 bedroom detached house for sale in Boxwood Grove, West End, GU24 — £649,950 • 3 bed • 2 bath • 1185 ft²
4 bedroom semi-detached house for sale in Rose Meadow, West End, Woking, Surrey, GU24 — £600,000 • 4 bed • 2 bath • 1754 ft²
2 bedroom semi-detached house for sale in Lucas Drive, West End, Woking, GU24 — £450,000 • 2 bed • 1 bath • 812 ft²
3 bedroom link detached house for sale in Mahonia Close, West End, Woking, Surrey, GU24 — £625,000 • 3 bed • 2 bath • 1231 ft²
3 bedroom semi-detached house for sale in Commonfields, West End, GU24 — £600,000 • 3 bed • 1 bath • 1023 ft²
4 bedroom detached house for sale in Rounce Lane, West End, Woking, Surrey, GU24 — £875,000 • 4 bed • 1 bath • 1985 ft²






















































