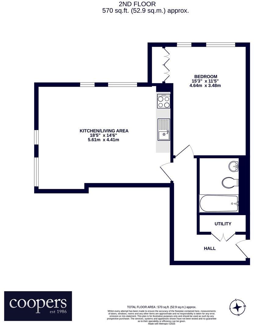
**Standout Features:**
- Modern one-bedroom apartment in a secure gated development
- Open-plan kitchen and living area with high ceilings and large windows
- Allocated parking with electric charging available
- Concierge service and well-maintained communal areas
- Convenient access to transport links, including Crossrail
- Close proximity to amenities such as Hillingdon Hospital and Brunel University
**Potential Concerns:**
- Located in an area with above-average crime rates
- Leasehold tenure with a small ground rent of £125
**Summary:**
Discover comfort and modern living in this stylish one-bedroom apartment, set within the tranquil Weston Court gated community. With an inviting open-plan design that maximizes natural light through high ceilings and expansive windows, this well-maintained property offers a contemporary kitchen equipped with integrated appliances, a cozy bedroom with built-in wardrobes, and a conveniently located bathroom.
Enjoy the convenience of onsite amenities, including a concierge service and electric charging for your vehicle, all just a stone's throw from essential local services, transport connections, and recreational areas. This apartment is perfect for first-time buyers or investors looking to capitalize on rental opportunities in a vibrant urban setting. With its attractive price of £268,000, don’t miss your chance to secure a piece of city living in this peaceful enclave—act now to view and embrace the lifestyle this property can offer!
1 bedroom flat for sale in Brindley Place, Weston Court, UB8 — £280,000 • 1 bed • 1 bath • 580 ft²
1 bedroom apartment for sale in Westgate Court, Hillingdon, UB10 — £375,000 • 1 bed • 1 bath • 585 ft²
1 bedroom flat for sale in Brindley Place, Rennie Court, UB8 — £290,000 • 1 bed • 1 bath • 558 ft²
1 bedroom apartment for sale in Uxbridge Road, Hillingdon, UB10 — £235,000 • 1 bed • 1 bath • 561 ft²
1 bedroom flat for sale in 70 Station Road, West Drayton, UB7 — £227,000 • 1 bed • 1 bath • 513 ft²
2 bedroom flat for sale in 5 Brindley Place, Uxbridge, UB8 — £370,000 • 2 bed • 2 bath


















































