Family-focused home with large garden and practical living spaces near good schools.
- Four bedrooms with principal en‑suite
- Spacious kitchen/diner with French doors to garden
- Large private rear garden and patio area
- Integral garage, driveway parking, conversion potential
- Leasehold tenure — check lease length and charges
- Council Tax Band E — above average costs
- Slow local broadband speeds reported
- No flooding risk; low local crime rate
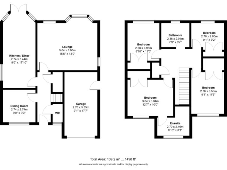
This well-presented four-bedroom detached home sits at the end of a peaceful cul‑de‑sac on Kew House Drive, offering generous living spaces and a large private garden ideal for family life. The lounge features a bay window and fireplace; the spacious kitchen/diner with French doors opens directly onto the rear lawn and patio, creating an easy flow for day-to-day living and outdoor play.
The principal bedroom includes a modern en‑suite, while three further bedrooms provide flexible accommodation for children, guests or a home office. Off‑road parking and an integral garage add practical storage and vehicle space; the garage also offers conversion potential subject to consents. Local schooling options are strong overall, with several “Good” rated primaries and secondaries within easy reach.
Practical points to note: the property is leasehold and sits in Council Tax Band E, so purchasers should review lease terms and running costs. Broadband speeds in the area are reported as slow, and the house is average sized internally at about 1,498 sq ft, which should be considered against the family’s space needs.
Overall this is a comfortable, modern family home in a sought‑after Southport location, with straightforward living, strong outdoor space and sensible scope for minor updating or garage conversion to increase usable space.
4 bedroom detached house for sale in Birdling Drive, Southport, Merseyside, PR8 — £390,000 • 4 bed • 2 bath • 1675 ft²
4 bedroom detached house for sale in Altham Road, Southport, Merseyside, PR8 6XL, PR8 — £375,000 • 4 bed • 2 bath • 1015 ft²
4 bedroom detached house for sale in Thirlmere Drive, Southport, Merseyside, PR8 3TY, PR8 — £475,000 • 4 bed • 3 bath • 2146 ft²
3 bedroom detached house for sale in Ruddington Road, Southport, PR8 — £310,000 • 3 bed • 2 bath
4 bedroom detached house for sale in Darlton Drive, Southport, PR8 — £395,000 • 4 bed • 2 bath • 1335 ft²
4 bedroom detached house for sale in Woodhouse Close, Southport, Merseyside, PR8 — £415,000 • 4 bed • 2 bath • 1546 ft²










































































































