PR8 6XL - 4 bed modern detached four bedroom in Altham Road, PR8 6XL

View on Property Piper

4 bedroom detached house for sale in Altham Road, Southport, Merseyside, PR8 6XL, PR8

Summary - 2, ALTHAM ROAD, SOUTHPORT PR8 6XL

4 bed 2 bath Detached

Turnkey four-bedroom detached home with sun-catching garden in desirable Southport location..
Four bedrooms in a newly renovated detached house
Brand-new boiler, new windows, doors and radiators throughout
Two stylish bathrooms; contemporary kitchen with integrated appliances
Sun-catching landscaped garden and driveway parking for multiple cars
Integral garage with electric fob-operated door and internal access
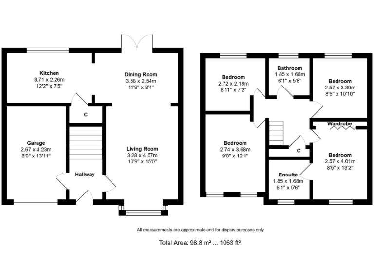
Compact overall size (~1,015 sq ft); rooms are efficient, not grand
Partial re-wire completed; further electrical work may be needed
Council Tax Band D; no flood risk
This recently renovated four-bedroom detached home on Altham Road offers modern, move-in-ready accommodation in an affluent Southport neighbourhood. The property benefits from new windows and doors, a brand-new boiler, contemporary bathrooms, and a fully fitted garage with an electric door and internal access.

Despite the fresh refurbishment, the house is compact overall (approximately 1,015 sq ft) so rooms feel efficient rather than expansive. A partial re-wire has been completed, but some electrical work may remain. Council Tax sits in a moderate Band D.

Outdoors, a sun-catching, landscaped garden and driveway provide practical family space, while the garage adds secure parking and storage. Good broadband speeds and nearby reputable schools make this a practical choice for families wanting a turnkey home close to Southport amenities.

Property Details

Image Descriptions

Floorplan Description

Rooms

Textual Property Features

Target Audience

AI Tags

Detected Visual Features

Nearby Schools

Nearest Bars And Restaurants

,,,,}

Nearest General Shops

,,}

Nearest Grocery shops

,,}

Nearest Supermarkets

,,}

Nearest Religious buildings

,,}

Nearest Medical buildings

,,,}

Nearest Leisure Facilities

,,,,}

Nearest Tourist attractions

,,}

Nearest Train stations

,,,,}

Nearest Bus stations and stops

,,,,}

Nearest Hotels

,,}

Tags

Local Market Stats

Similar Properties

Meta

High Res Images

Compatible Images

Low res Images

Thumbnails

Raw Images

High Res Floorplan Images

Compatible Floorplan Images

Low res Floorplan Images

FloorplanImages Thumbnail

Raw Floorplan Images