Spacious period apartment for full renovation in the heart of town, chain free.
Grade II listed — listed status will restrict works and increase costs
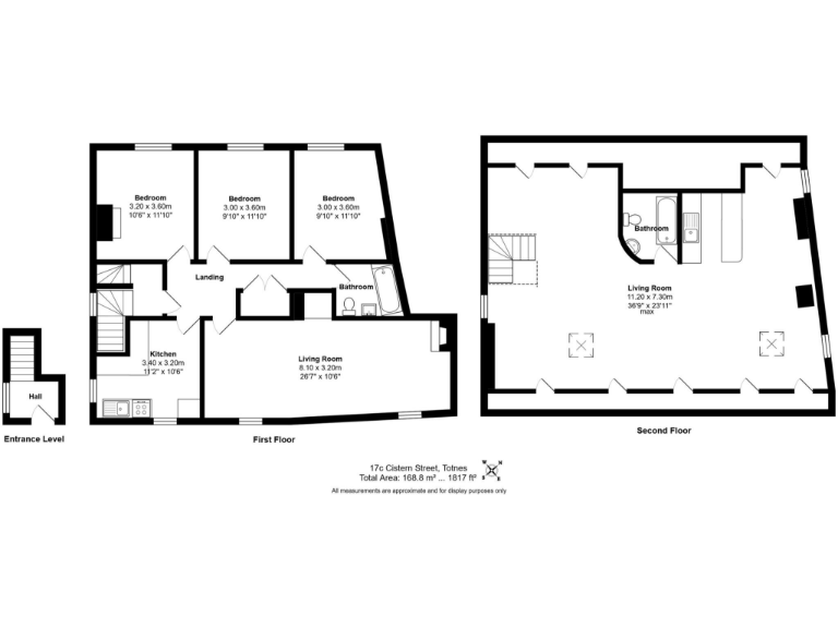
A rare central Totnes maisonette offered chain-free with significant character and clear scope for restoration. The property occupies generous floor area (about 1,711 sq ft) across multiple storeys and retains original features such as exposed beams, tall ceilings and period windows. It has mains gas central heating, good broadband and excellent mobile signal.
This Grade II listed building requires a full refurbishment and will need specialist listed-building consent for many works; the listed status is likely to constrain changes and increase costs. The listing, combined with cob walls and visible interior wear, means this is a renovation project rather than a move-in-ready home.
Ownership is a share of freehold/long lease arrangement (around 199–206 years reported), and the sale is advertised with no onward chain. Council Tax band C and low local crime make the location practical for family living or rental occupation, while proximity to Totnes high street, transport links and a wide range of amenities supports both owner-occupiers and lettings potential.
Because of the scale of works needed, this will suit a buyer prepared for a substantial refurbishment programme — an investor, experienced renovator or family seeking to create a bespoke home — and not someone seeking a quick, low-cost purchase.
4 bedroom apartment for sale in High Street, Totnes, TQ9 — £450,000 • 4 bed • 1 bath • 1615 ft²
3 bedroom flat for sale in Totnes, TQ9 — £350,000 • 3 bed • 1 bath • 1527 ft²
2 bedroom apartment for sale in High Street, Totnes, Devon, TQ9 — £495,000 • 2 bed • 1 bath • 2090 ft²
3 bedroom apartment for sale in Castle Street, Totnes, TQ9 — £350,000 • 3 bed • 1 bath • 1080 ft²
2 bedroom semi-detached house for sale in South Street, Totnes, TQ9 — £395,000 • 2 bed • 1 bath • 956 ft²
2 bedroom apartment for sale in Flat 2, 10 Fore Street, Totnes, TQ9 — £210,000 • 2 bed • 1 bath • 571 ft²


















































































