**Standout Features:**
- Grade II listed mixed-use building.
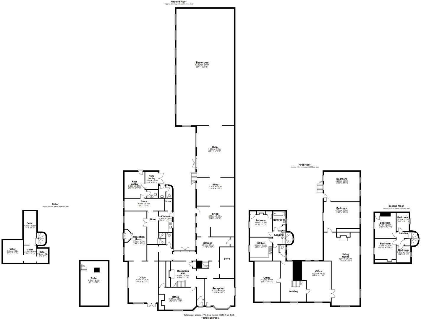
- Approximately 8,000 sq ft of versatile residential and commercial space.
- Historic architecture, originally built in 1660.
- Located in a prominent and vibrant town center overlooking St. Oswald's Church.
- Gated car parking available.
- Potential for development and conversion (subject to local authority consent).
- Proximity to well-regarded schools and local amenities.
**Summary:**
Nestled in the heart of Oswestry, this iconic Grade II listed property offers a rare opportunity with its expansive 8,000 sq ft of versatile residential and commercial space. Originally dating back to 1660, the building boasts rich history and distinctive Tudor Revival architecture, presenting a unique canvas for potential buyers to envision their dreams—be it a thriving business, a family residence, or a combination of both.
Overlooking the serene St. Oswald's Churchyard, the property features a range of spacious rooms, complete with significant natural light, exposed beams, and modern amenities, perfect for transformation into offices, retail spaces, or cozy apartments (subject to LA consent). The gated car parking provides convenience in this bustling town area, enhancing its appeal for both commercial and residential use.
With its historical value, strategic location, and development potential, this property is not just a home; it’s a landmark waiting for the next chapter of its story. Don’t miss out on this unique opportunity to own a piece of Oswestry’s heritage—properties of this caliber are rare and sought after.
Commercial property for sale in Church Street, Oswestry, SY11 — £750,000 • 1 bed • 1 bath • 8000 ft²
5 bedroom mixed use property for sale in 13-17 Oswald Road, Oswestry, Shropshire, SY11 1RB, SY11 — £450,000 • 5 bed • 1 bath • 5466 ft²
Restaurant for sale in 35 Willow Street, Oswestry, SY11 1AQ, SY11 — £650,000 • 1 bed • 1 bath • 7803 ft²
3 bedroom character property for sale in Willow Street, Oswestry, SY11 — £300,000 • 3 bed • 2 bath • 379 ft²
High street retail property for sale in 3 Mardol, Shrewsbury, SY1 1PY, SY1 — £395,000 • 1 bed • 1 bath • 3581 ft²
High street retail property for sale in 5 New Street, Shrewsbury, SY3 8JN, SY3 — £285,000 • 1 bed • 1 bath • 1190 ft²


























































