**Standout Features:**
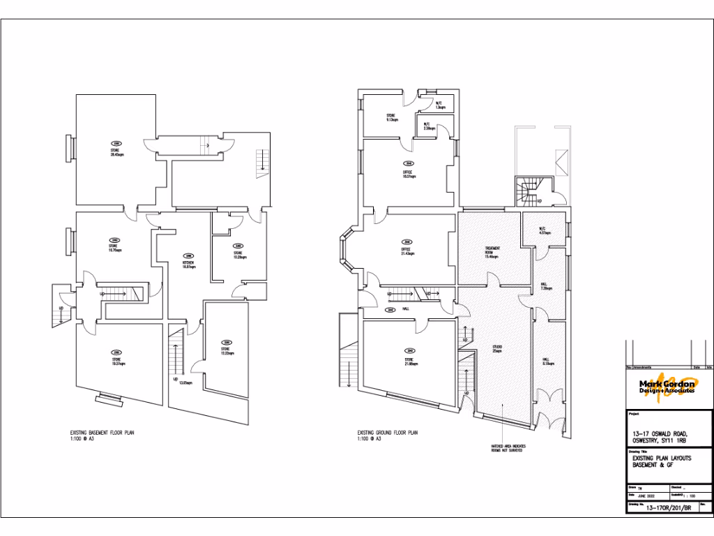
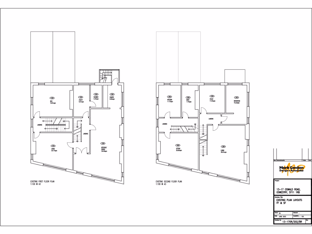
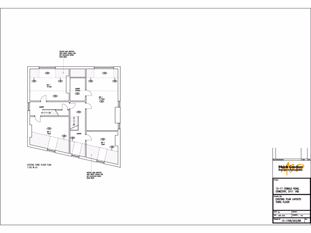
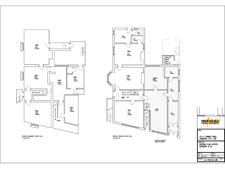
- Large mixed-use property with 5 bedrooms and multiple commercial offices
- Two interlinking buildings with original period features
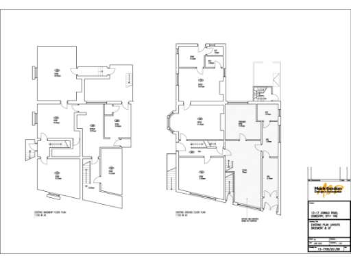
- Cellar space with potential for various uses
- Ample parking for 5-6 vehicles and a rear garden
- Prime location just off the town center, opposite the upcoming railway station refurbishment
**Summary:**
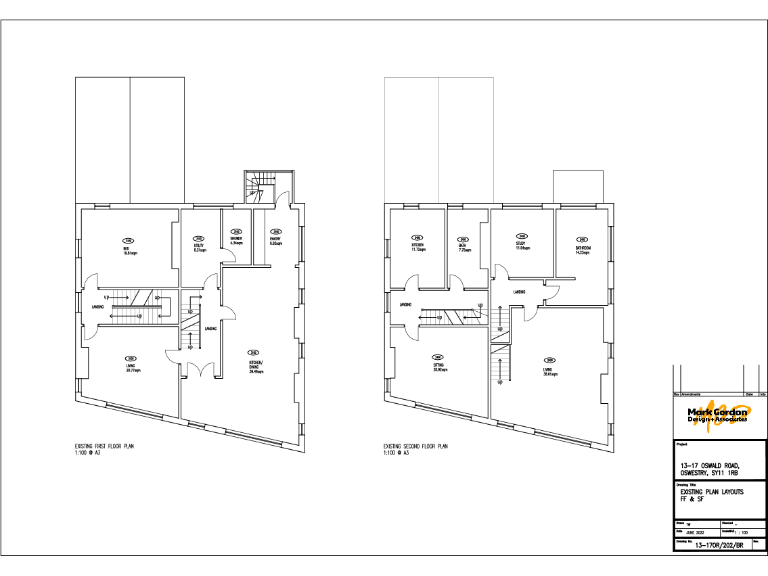
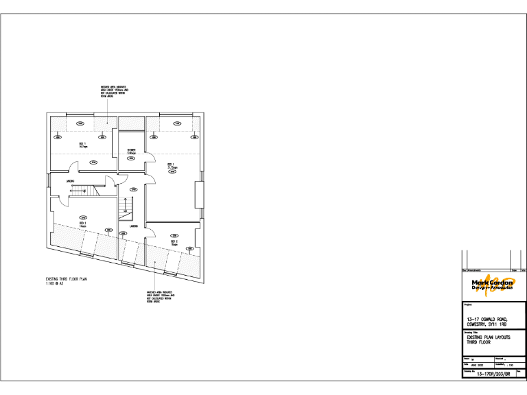
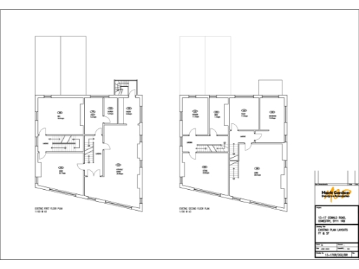
Discover an exceptional investment or family opportunity with this expansive mixed-use property at 13-17 Oswald Road, Oswestry. Spanning 5,466 sq.ft., this two-building ensemble combines commercial office spaces and residential living, offering considerable versatility. With its charming Victorian architecture and period features, the property boasts a ground-floor commercial area ripe for various business ventures, alongside spacious residential units ready for personal touches or upgrades.
The interlinked upper floors feature generous accommodations including two large rooms on the first floor and two additional bedrooms on the second, perfect for a growing family or rental potential. While some modernizations are needed, the property benefits from a large cellar previously used for commercial purposes and a rear walled garden—ideal for outdoor relaxation or further development, subject to permissions.
Located just off the vibrant town center, you'll have convenient access to a wealth of amenities, including shops, eateries, and public transport, amplifying its appeal for both businesses and families. Don't miss the chance to own a piece of potential in Oswestry—properties like this one, with flexible use possibilities, are rare and often sought after. Invest in your future today!
6 bedroom town house for sale in Oswald Road, Oswestry, SY11 — £450,000 • 6 bed • 4 bath • 6182 ft²
Commercial property for sale in Church Street, Oswestry, SY11 — £750,000 • 1 bed • 1 bath • 8000 ft²
Restaurant for sale in 35 Willow Street, Oswestry, SY11 1AQ, SY11 — £650,000 • 1 bed • 1 bath • 7803 ft²
House for sale in Church Street, Oswestry, SY11 — £750,000 • 1 bed • 1 bath • 8000 ft²
Commercial property for sale in New Street, Oswestry, Shropshire, SY11 — £800,000 • 6 bed • 1 bath
Mixed use property for sale in 3 & 4 Shoplatch, Shrewsbury, SY1 1HF, SY1 — £350,000 • 1 bed • 1 bath • 2339 ft²


































