Ground-floor living with parking, shared gardens and en-suites to both bedrooms.
Ground-floor apartment with no onward chain
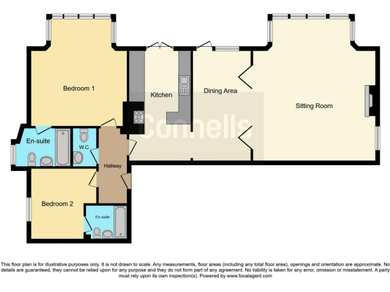
A rare ground-floor apartment occupying a substantial 1,283 sq ft of flexible living space, this two-bedroom home offers generous room sizes, high ceilings and en-suites to both bedrooms. The layout includes a large lounge, separate dining area and well-proportioned kitchen, suited to comfortable single-floor living. Allocated off-street parking and shared gardens add convenience and low-maintenance outdoor space. The property is offered chain-free and will suit someone seeking roomy, accessible accommodation in Grantham.
This is a leasehold home constructed before 1900 with solid brick walls; the building retains period character but may need modernisation such as insulation improvements and an update schedule for heating or glazing (double glazing present, install date unknown). Service charge and ground rent apply (average service charge £1,440pa; ground rent £100pa) and purchasers should budget for typical leasehold costs and any additional administrative fees.
Practical positives include mains gas central heating (boiler and radiators), allocated parking and excellent mobile signal. Local amenities, bus routes and good rail links to London and northern centres are close by. Note the area records above-average crime rates; buyers should consider security measures and take local advice. Council tax is moderate and broadband speeds are average.
Overall this ground-floor apartment will most appeal to retirees or downsizers seeking a spacious, single-level home that retains period charm and delivers immediate occupation without a chain. It also offers scope for energy-efficiency improvements and cosmetic updating to unlock further value.
2 bedroom flat for sale in Beacon Lane, GRANTHAM, NG31 — £300,000 • 2 bed • 3 bath • 2322 ft²
3 bedroom ground floor flat for sale in Beacon Lane, Grantham, NG31 — £200,000 • 3 bed • 2 bath • 844 ft²
2 bedroom ground floor flat for sale in Beacon Lane , Grantham , NG31 — £300,000 • 2 bed • 2 bath • 496 ft²
2 bedroom apartment for sale in Pacey Way, Grantham, NG31 — £130,000 • 2 bed • 2 bath
2 bedroom apartment for sale in Hudson Way, Grantham , NG31 — £104,000 • 2 bed • 1 bath • 437 ft²
3 bedroom ground floor flat for sale in Beacon Lane , Grantham , NG31 — £200,000 • 3 bed • 2 bath • 1334 ft²






































































