Fully let 4-bed HMO near University of Hull — strong immediate income, 15% yield at £140k.
Proven fully let HMO with four tenants at £110pw each (48-week contracts)
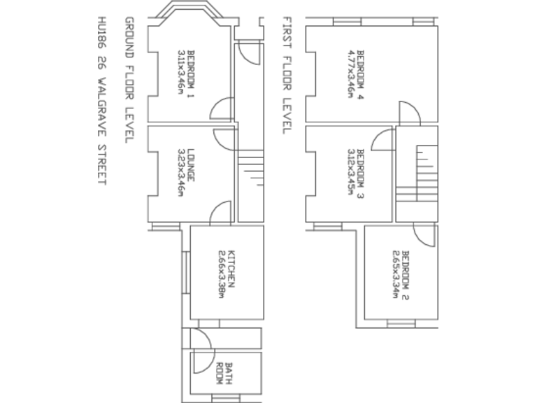
This mid-terrace, four-bedroom HMO on Malgrave Street offers a proven income stream in a strong student rental pocket close to Newland Avenue and the University of Hull. Currently fully let to four tenants at £110 per week each on 48-week tenancies, the property produces an annual rental income of £21,120 — a headline yield of 15.09% at the £140,000 asking price. Tenure is freehold and the building benefits from gas central heating and double glazing installed after 2002.
Internally the house is set up for shared living with furnished bedrooms, a communal living/dining area and a modern kitchen. Heating is provided by a mains-gas boiler with radiators. The property’s Victorian build and bay-fronted façade give period character that appeals to student tenants; broadband and mobile signal are reported as fast and excellent respectively, supporting high occupancy.
Buyers should note practical issues that affect running costs and future upside. The wider area is classed as deprived, and the property sits in a cosmopolitan student neighbourhood — ideal for lettings but not for buyers seeking a quiet residential street. Records list the building as having solid brick walls with no added wall insulation (assumed), so investors should budget for any thermal upgrades if desired. Parking is on-street and council tax is very cheap, which supports low overheads for a landlord.
This asset is aimed at investors or landlords targeting student tenants: it delivers immediate, reliable cashflow with room to optimise longer-term returns through energy improvements or cosmetic refurbishment. Prospective buyers should verify the bathroom count (conflicting notes in materials) and inspect tenancy paperwork and condition reports before exchange.
3 bedroom house share for sale in Raglan Street, Hull, HU5 — £115,000 • 3 bed • 1 bath • 527 ft²
5 bedroom house share for sale in Cranbrook Avenue, Hull, HU6 — £210,000 • 5 bed • 2 bath • 1368 ft²
4 bedroom house share for sale in Ventnor Street, Hull, HU5 — £140,000 • 4 bed • 1 bath • 679 ft²
4 bedroom end of terrace house for sale in Melbourne Street, Hull, HU5 2ET, HU5 — £115,000 • 4 bed • 1 bath • 1077 ft²
4 bedroom terraced house for sale in Washington Street, Hull, HU5 — £150,000 • 4 bed • 4 bath • 1141 ft²
6 bedroom house share for sale in Ash Grove, Beverley Road, Hull, HU5 — £205,000 • 6 bed • 3 bath • 1346 ft²


















































