Established rental income with approved development upside close to town.
Freehold block of four apartments generating £73,200 per annum
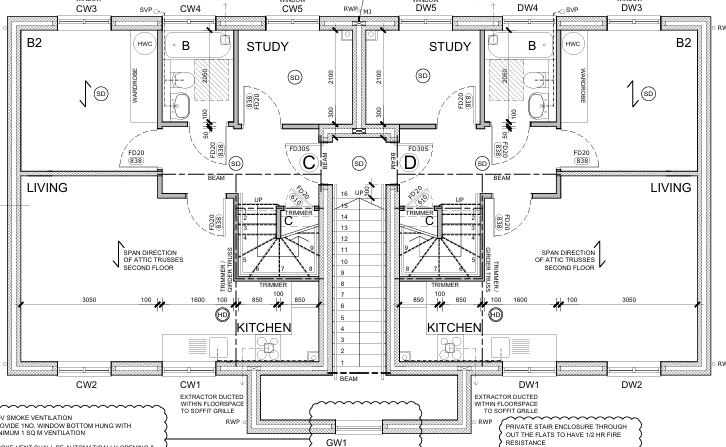
Planning permission approved for an extra storey; +3 apartments potential
Allocated off-street parking for each apartment
Town-centre location with excellent mobile signal and fast broadband
Ten flats total: 10 bedrooms, 6 bathrooms across the block
Main heating via electric room heaters — higher running costs likely
Overall property size described as small; compact apartment footprints
Average local crime; standard urban management and lettings skills needed
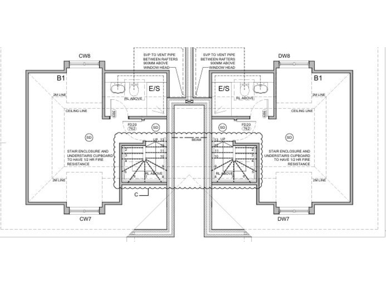
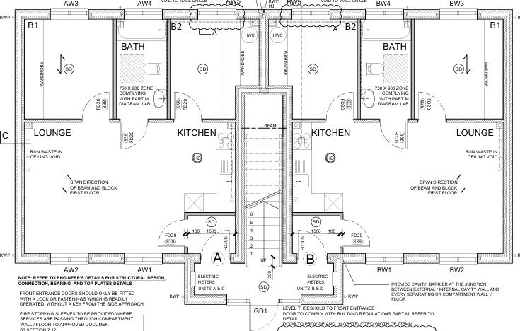
This freehold block of four modern apartments sits moments from Reading town centre, currently producing £73,200 pa. The set includes two ground-floor two-bed units and two split-level three-bed units, plus allocated off-street parking for each apartment. Planning permission is approved to add a further storey, creating three additional flats and materially increasing rental income and capital value.
The apartments are contemporary in style and compact in footprint, suited to buy-to-let or a development hold. Main heating is electric room heaters, so running costs may be higher than gas-heated properties. The building is classified as small overall and lies in an inner-city location with good broadband and excellent mobile signal.
This is a clear value-add opportunity for an investor or developer. Income is established and uplift through the approved extension is immediate; however, purchasers should allow for potential refurbishment and ongoing running costs linked to electric heating. Average local crime and town-centre setting mean standard management and lettings experience will be important.
 5 bedroom block of apartments for sale in Cumberland Road, Reading, RG1 — £749,500 • 5 bed • 3 bath • 969 ft²
 5 bedroom block of apartments for sale in Cumberland Road, Reading, RG1 — £749,500 • 5 bed • 3 bath • 969 ft² Block of apartments for sale in Hambridge Road, Newbury, Berkshire, RG14 5SS., RG14 — £550,000 • 1 bed • 1 bath
 Block of apartments for sale in Hambridge Road, Newbury, Berkshire, RG14 5SS., RG14 — £550,000 • 1 bed • 1 bath 52 bedroom block of apartments for sale in Padworth Avenue, Reading, RG2 — £7,950,000 • 52 bed • 52 bath • 1014 ft²
 52 bedroom block of apartments for sale in Padworth Avenue, Reading, RG2 — £7,950,000 • 52 bed • 52 bath • 1014 ft² 4 bedroom block of apartments for sale in 2 George Street, Reading, Berkshire, RG1 — £390,000 • 4 bed • 4 bath • 1270 ft²
 4 bedroom block of apartments for sale in 2 George Street, Reading, Berkshire, RG1 — £390,000 • 4 bed • 4 bath • 1270 ft² 28 bedroom house for sale in Kings Road, Reading, RG1 — £5,500,000 • 28 bed • 28 bath • 11950 ft²
 28 bedroom house for sale in Kings Road, Reading, RG1 — £5,500,000 • 28 bed • 28 bath • 11950 ft² 6 bedroom house for sale in Kings Road, Reading, RG1 — £1,900,000 • 6 bed • 6 bath • 3724 ft²
 6 bedroom house for sale in Kings Road, Reading, RG1 — £1,900,000 • 6 bed • 6 bath • 3724 ft²










































