Three-flat potential freehold near schools and good digital connectivity.
Freehold brick-built block with off-road parking for several cars
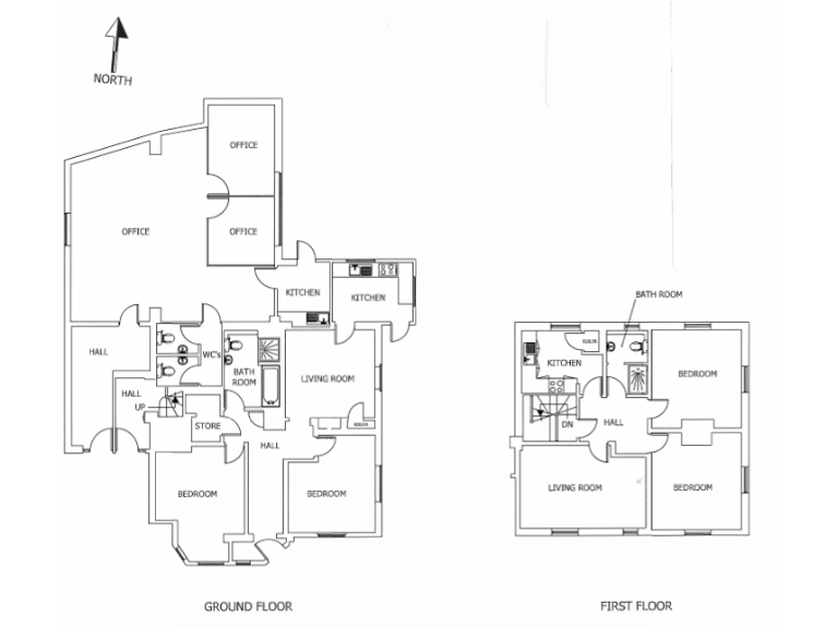
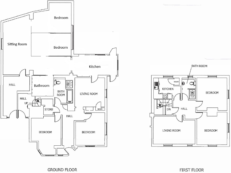
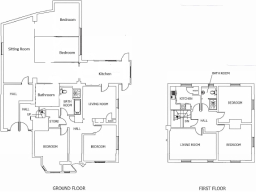
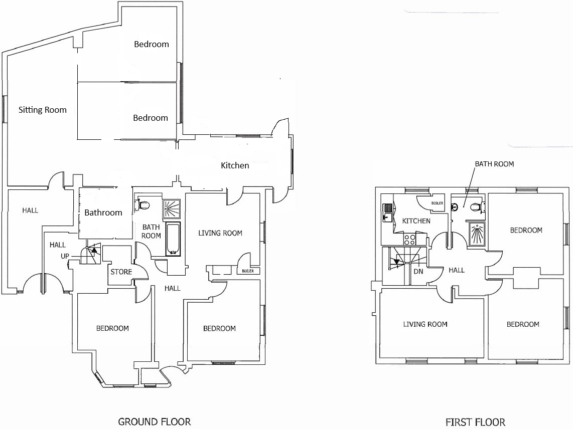
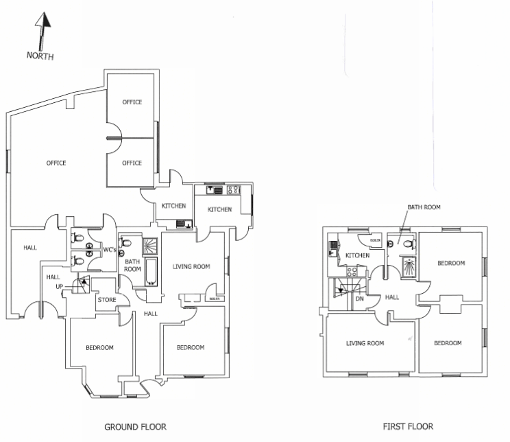
A traditional brick-built block in Newbury currently arranged as two fully let flats plus a partially converted ground-floor unit offering clear value for an investor or small portfolio owner. Both completed flats are let on Assured Shorthold Tenancies; the purchaser will be responsible for finishing the ground-floor conversion to create a third self-contained flat. The building sits on a generous plot with off-road parking for several vehicles and some external space suitable for storage or modest landscaping.
The two let flats are spacious: each provides two double bedrooms, a sitting room and modern kitchen or shower/bath facilities. Heating is gas in the ground-floor flat and electric air conditioning/heating to the first floor. The partly converted ground-floor unit already has a private entrance and basic rooms in place but requires completion works and statutory approvals before re-letting as a separate residential unit.
Location strengths include fast broadband, excellent mobile signal, an affluent local area classification and multiple nearby primary and secondary schools rated Good. Note the wider neighbourhood crime indicator is high; prospective buyers should satisfy themselves on local safety and management measures. Flood risk is reported as none.
This freehold purchase suits an investor or a buyer wanting immediate rental income with short-term upside from completing the conversion. The block will need some finishing work and ongoing management, but the combination of existing tenancies, parking and conversion potential creates practical scope to increase rental value once works and permissions are completed.
10 bedroom apartment for sale in Admirals Court, Rose Kiln Lane, Reading, RG1 — £1,150,000 • 10 bed • 6 bath • 1585 ft²
2 bedroom apartment for sale in Kentwood Hill, Tilehurst, Reading, RG31 — £395,000 • 2 bed • 2 bath • 815 ft²
2 bedroom apartment for sale in Brunel Court, Old College Road, Newbury, RG14 — £250,000 • 2 bed • 2 bath • 649 ft²
5 bedroom block of apartments for sale in Cumberland Road, Reading, RG1 — £749,500 • 5 bed • 3 bath • 969 ft²
2 bedroom flat for sale in Newbury, Berkshire, RG14 — £220,000 • 2 bed • 1 bath • 637 ft²
2 bedroom flat for sale in Newbury, Berkshire, RG14 — £225,000 • 2 bed • 2 bath • 710 ft²


















































