**Standout Features:**
- Prime mixed-use freehold property with significant development potential (subject to planning permission)
- Prime location just a 5-minute walk to West Norwood train station
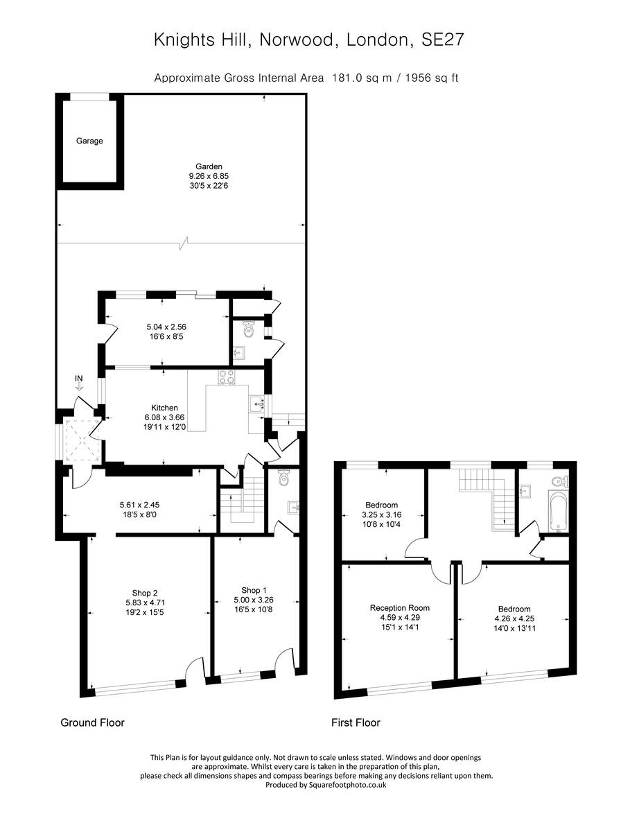
- Comprises two commercial shops and a three-bedroom flat
- Vacant possession, chain-free sale
- Excellent transport links and amenities within walking distance
- Potential for conversion or enhanced commercial use
**Concerns:**
- Requires maintenance
- Surrounding area has a higher-than-average crime rate
- Located in a deprived district
Located in the vibrant growth area of Knights Hill, SE27, this expansive mixed-use freehold property offers a unique opportunity for savvy investors and developers. With two commercial shops and a three-bedroom flat above, there is immense potential for income generation or conversion. The property is within a short stroll of West Norwood train station, ensuring excellent transport links and access to a thriving local community.
While the property's mid-century modern charm adds character, it does require some maintenance. Future owners could explore numerous possibilities for renovation or redevelopment (STPP), tapping into the area's ongoing transformation. Be part of this exciting locale, with various amenities, culinary options, and recreational facilities just steps away. This property is a rare find in a rapidly evolving neighborhood—don’t miss your chance to secure an investment in a promising area.
Light industrial facility for sale in Mixed-Use Parade For Sale, 81-89 Norwood High Street, West Norwood, West Norwood, SE27 9JS, SE27 — £2,000,000 • 1 bed • 1 bath • 7358 ft²
Commercial property for sale in Norwood High Street, London, SE27 — £325,000 • 1 bed • 1 bath • 486 ft²
Property for sale in High Street, London, SE25 — £1,250,000 • 1 bed • 1 bath • 7000 ft²
5 bedroom apartment for sale in High Street, London, SE25 — £800,000 • 5 bed • 2 bath • 2490 ft²
3 bedroom terraced house for sale in Dartmouth Road, Forest Hill, London, SE23 — £950,000 • 3 bed • 2 bath • 1108 ft²
Commercial property for sale in Turnpike Lane, London, N8 — £800,000 • 5 bed • 2 bath • 2195 ft²


















































































