**Standout Features:**
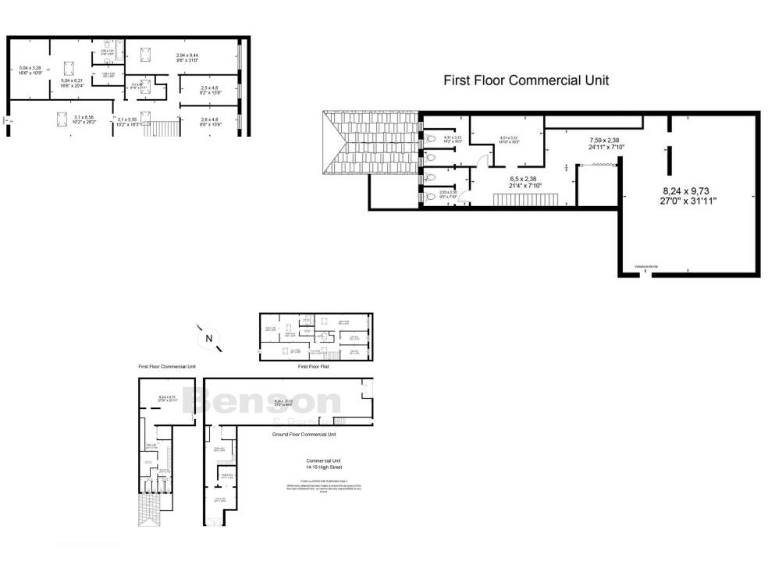
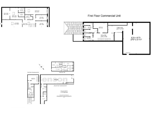
- Substantial commercial premises with a total area of nearly 7,000 sq ft.
- Prominent location on a busy High Street near Norwood Junction Station.
- Loading bay at the rear for easy access.
- Large upstairs area that could be converted into residential flats (subject to planning consent).
- New roof added approximately 2 years ago.
- Freehold sale available; leasing options possible.
**Potential Concerns:**
- Property may require renovation to meet modern standards.
- Historical status as a former Tesco may influence future tenant interest.
- Average broadband speeds noted, which may affect certain business operations.
This expansive commercial property presents a unique opportunity for investors or business owners seeking a prime location. Boasting nearly 7,000 sq ft of versatile space, the ground floor features a spacious open layout, ideal for retail or office use, while the significant upstairs area provides excellent potential for conversion into residential units, capitalizing on high demand in the area. Located on a well-trafficked High Street, the property's visibility and accessibility ensure strong foot traffic and customer engagement.
Although the building requires some renovation, its high structural standards and new roof add substantial value. With off-street parking and convenient loading facilities, this property supports seamless operations for any size business. Don’t miss this chance to secure a flexible space in a fast-developing community—opportunities like this are rare and may not be available for long.
5 bedroom apartment for sale in High Street, London, SE25 — £800,000 • 5 bed • 2 bath • 2490 ft²
Shop for sale in South Norwood Hill, South Norwood, SE25 — £650,000 • 1 bed • 1 bath • 969 ft²
Commercial property for sale in Knights Hill, London, SE27 — £1,250,000 • 1 bed • 1 bath • 1956 ft²
Commercial property for sale in Norwood High Street, London, SE27 — £325,000 • 1 bed • 1 bath • 486 ft²
Commercial property for sale in High Street, Croydon, London, CR0 — £460,000 • 1 bed • 1 bath • 2174 ft²
Property for sale in Woodside Green, 21 Woodside Green, SE25 — £600,000 • 1 bed • 1 bath • 1355 ft²










































