**Standout Features:**
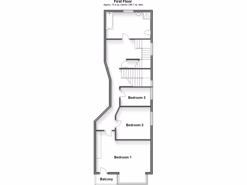
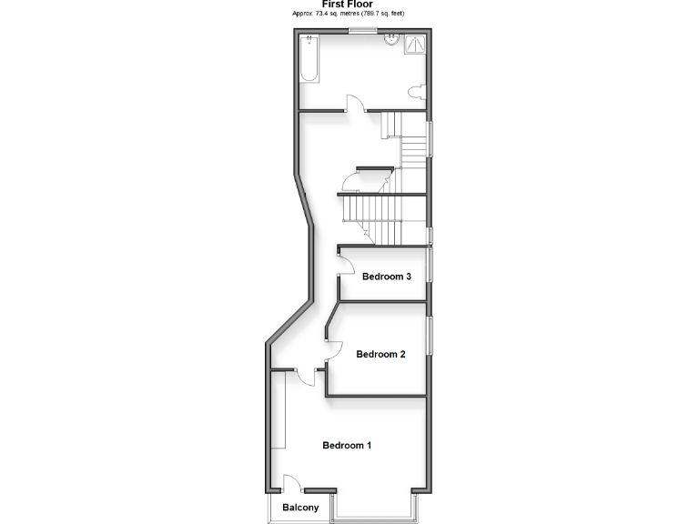
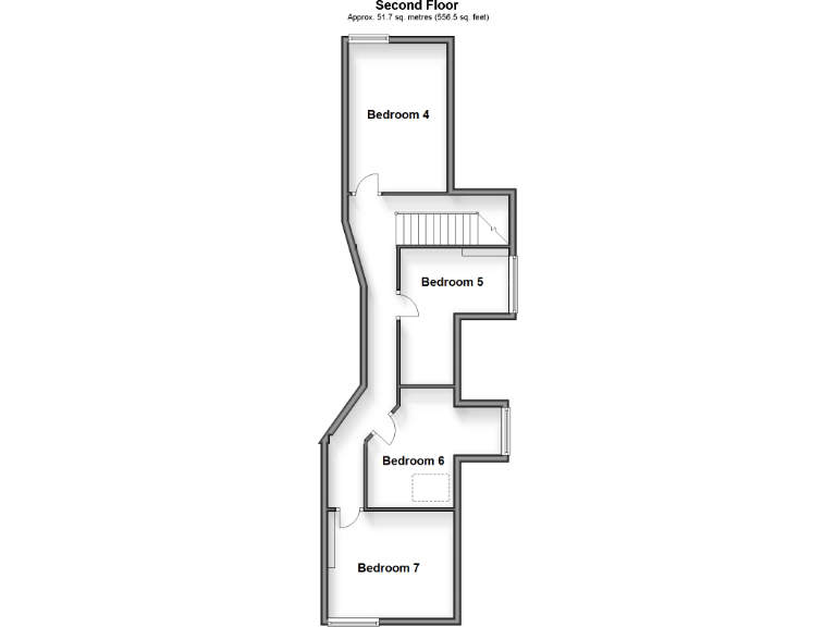
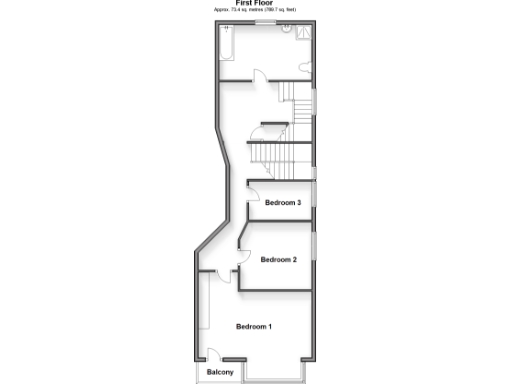
- Spacious 7-bedroom semi-detached home
- Enormous rear garden, ideal for entertaining
- Generously sized kitchen with modern amenities
- Off-road parking and views of the sea
- Great proximity to sandy beaches and local amenities
This charming 7-bedroom semi-detached house is a perfect blend of period charm and modern convenience, situated on Canterbury Road, Westbrook. With a generous total size of 2,024 sq. ft. and a large 0.25-acre plot, this home is perfect for families seeking both space and comfort. The expansive rear garden is a delightful retreat, perfect for gatherings or a tranquil evening outside. Inside, the large, well-appointed kitchen maximizes entertaining opportunities, providing a welcoming central hub for family and friends.
Beyond its impressive layout, the property boasts great connectivity with both Margate and Westbrook sandy beaches just a short distance away. Key amenities are within an easy walk, and highly rated local schools add to its appeal for families.
While the home showcases many desirable features, potential buyers should be aware that maintenance of the expansive property will be needed, particularly to its Victorian elements. Priced at £750,000, this unique home offers exciting renovation opportunities and a secure, family-friendly environment, making it a rare find in today's market. Don’t wait – such an exceptional property in this sought-after location won’t last long!
6 bedroom terraced house for sale in Canterbury Road, Westbrook, Margate, Kent, CT9 — £500,000 • 6 bed • 5 bath • 797 ft²
4 bedroom detached house for sale in Westbrook Avenue, Margate, Kent, CT9 — £500,000 • 4 bed • 1 bath • 1161 ft²
4 bedroom semi-detached house for sale in Westfield Road, Westbrook, Margate, Kent, CT9 — £450,000 • 4 bed • 2 bath • 953 ft²
4 bedroom detached house for sale in Canterbury Road, Margate, CT9 — £625,000 • 4 bed • 3 bath • 1767 ft²
5 bedroom terraced house for sale in Rancorn Road, Westbrook, Westgate On Sea, CT9 — £400,000 • 5 bed • 1 bath • 1600 ft²
5 bedroom detached house for sale in Pembroke Avenue, Margate, Kent, CT9 — £950,000 • 5 bed • 4 bath • 2164 ft²


























































