**Standout Features:**
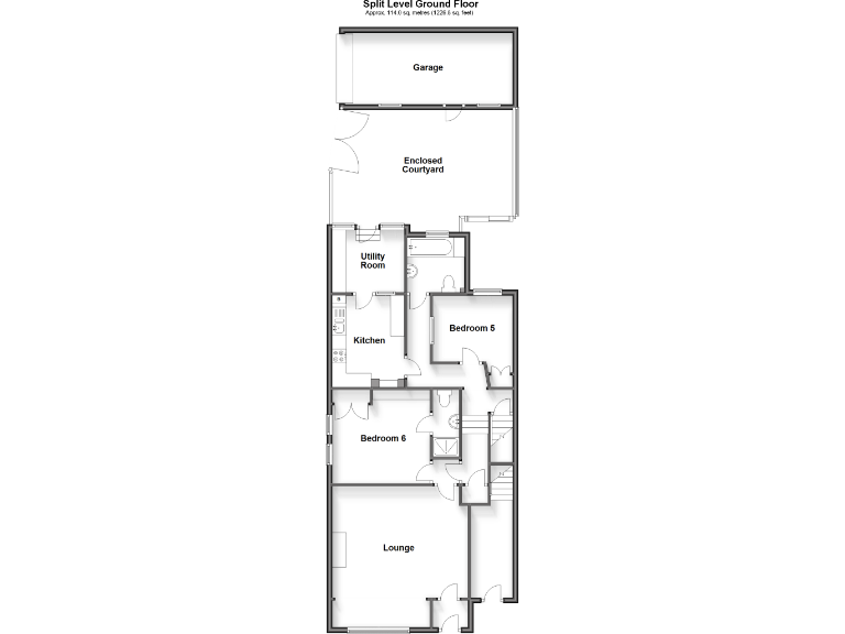
- Spacious 6-bedroom terraced home, offering versatile living arrangements
- Period features throughout, providing character and charm
- Stunning views of Westbrook Bay
- Car port and valuable off-road parking
- Short walk to Margate Train Station, Dreamland, and the beautiful beach
**Summary:**
Discover a unique opportunity to own this exquisite 6-bedroom period terraced house on Canterbury Road, Westbrook, Margate. With its spacious layout, this home not only offers comfortable living but the potential for rental income, making it perfect for families or savvy investors. Enjoy charming period details throughout, alongside modern conveniences like multiple bathrooms and a utility room. The property features enticing views of Westbrook Bay and provides both a car port and off-road parking, a rare find in this area.
While its location benefits from nearby amenities and easy access to local schools, it's important to note that the surrounding area has a higher crime rate and may require some maintenance work to fully enhance its charm. The enclosed courtyard garden offers privacy, while the short distance to the sandy beach invites relaxation and leisure. Don’t miss the chance to make this character-rich home yours—properties like this are in high demand and won’t stay on the market for long!
7 bedroom semi-detached house for sale in Canterbury Road, Westbrook, Margate, Kent, CT9 — £750,000 • 7 bed • 1 bath • 2024 ft²
5 bedroom terraced house for sale in Rancorn Road, Westbrook, Westgate On Sea, CT9 — £400,000 • 5 bed • 1 bath • 1600 ft²
4 bedroom detached house for sale in Westbrook Avenue, Margate, Kent, CT9 — £500,000 • 4 bed • 1 bath • 1161 ft²
6 bedroom terraced house for sale in Grotto Hill, Margate, CT9 — £350,000 • 6 bed • 2 bath • 1650 ft²
6 bedroom semi-detached house for sale in Canterbury Road, Margate, CT9 — £550,000 • 6 bed • 2 bath • 2443 ft²
6 bedroom town house for sale in Ramsgate Road, Margate, CT9 5RT, CT9 — £475,000 • 6 bed • 2 bath • 2800 ft²










































































































