Deceptively spacious village home with garden studio and parking.
Four bedrooms with three generous doubles and one single
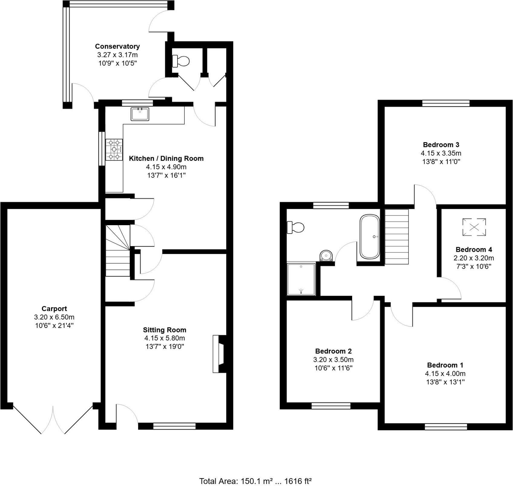
This brick-and-flint cottage blends original character with a spacious, refurbished interior. The ground-floor sitting room features exposed beams, timber floors and a wood-burning stove; the kitchen/dining room and conservatory add versatile family living space. Upstairs are four bedrooms and a four-piece bathroom, giving genuine flexibility for family life or a multi-let holiday arrangement.
Externally the property benefits from a private rear garden with a recently built summer house/studio and a lockable car port providing secure off-street parking and storage. The village location places the Norfolk coast, countryside walks and local amenities within easy reach, making it attractive to holidaymakers and full-time residents alike.
The cottage is sold freehold and with no onward chain, and it has an established track record as a successful holiday let. Practical points to note: the estate information records an EPC rating of D, private drainage, and a note that the property is currently council-tax exempt while used as a holiday let. Buyers should verify the heating arrangement and services—listing text references oil-fired radiators, while summary data records an air-source heat pump and underfloor electric heating.
Prospective purchasers are advised to commission their own inspections and service checks. The property is well placed for families wanting village life close to the coast and for investors seeking a ready-made holiday-let opportunity, but exact running costs and service arrangements should be confirmed before offer.
4 bedroom semi-detached house for sale in Sedgeford, PE36 — £375,000 • 4 bed • 2 bath • 960 ft²
3 bedroom detached house for sale in Ringstead Road, Sedgeford, Hunstanton, PE36 — £450,000 • 3 bed • 2 bath • 3305 ft²
3 bedroom semi-detached house for sale in Hillside, Sedgeford, HUNSTANTON, PE36 — £265,000 • 3 bed • 1 bath • 776 ft²
3 bedroom cottage for sale in Sedgeford, PE36 — £485,000 • 3 bed • 2 bath • 1136 ft²
4 bedroom cottage for sale in Grammar School Cottages, Snettisham, PE31 — £365,000 • 4 bed • 2 bath • 1477 ft²
5 bedroom semi-detached house for sale in Parkside, Sedgeford, PE36 — £279,000 • 5 bed • 2 bath • 1400 ft²






































































































