A practical three‑bed terrace with generous garden and commuter links.
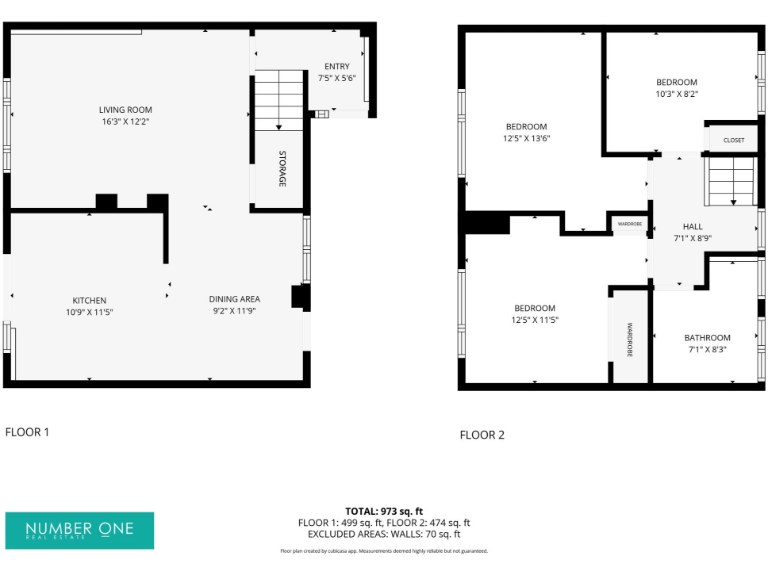
Three bedrooms: two doubles and one single, suitable for family or home office
Open‑plan ground floor linking lounge, dining and kitchen
Landscaped rear garden with artificial lawn, patio and decking
Non‑standard poured concrete construction — check mortgage lender restrictions
Single family bathroom; potential to modernise fixtures and fittings
Small plot size; no off‑street parking, on‑street parking only
Double glazing fitted pre‑2002 and system‑built walls with internal insulation
Average broadband speeds; excellent mobile signal, low local crime
Set on a quiet cul‑de‑sac in Llanmartin, this three‑bed mid‑terrace offers practical family living with flexible garden space. The ground floor has an open flow from lounge to dining area and kitchen, which opens via French doors to the landscaped rear garden. Two double bedrooms plus a single bedroom upstairs suit a young family or those needing a home office.
The garden is a strong selling point: low‑maintenance artificial lawns, multiple patio zones and a deck provide private outdoor space and room for children’s play or storage sheds. Parking is on‑street and the house sits close to local shops, a school and commuter routes including the M4 and Newport rail links.
Important practical notes: the property is non‑standard poured concrete construction — many lenders have restrictions, so buyers should confirm mortgage eligibility before offering. The house has system‑built walls with internal insulation and double glazing installed before 2002; some buyers may want to update windows or heating controls. Broadband speeds are average and the plot is small compared with modern family gardens.
Overall this mid‑century terrace is best for buyers wanting a ready‑to‑live family home with garden benefits and scope for cosmetic upgrading, or investors able to navigate the non‑standard construction considerations.
3 bedroom semi-detached house for sale in Llanwern Road, Newport, NP19 — £300,000 • 3 bed • 2 bath • 1044 ft²
3 bedroom terraced house for sale in Cot Farm Circle, Newport, NP19 — £190,000 • 3 bed • 1 bath • 980 ft²
3 bedroom terraced house for sale in Birch Grove, Llanmartin, NP18 — £210,000 • 3 bed • 1 bath • 851 ft²
3 bedroom semi-detached house for sale in Cae Perllan Road, Newport, NP20 — £260,000 • 3 bed • 1 bath • 786 ft²
3 bedroom terraced house for sale in Kensington Gardens, Newport, NP19 — £180,000 • 3 bed • 1 bath • 926 ft²
3 bedroom terraced house for sale in Somerton Road, Newport, NP19 — £175,000 • 3 bed • 1 bath • 1098 ft²






























































































































