Convenient commuter home with garden and fast broadband.
Three bedrooms with two double bay-windowed rooms
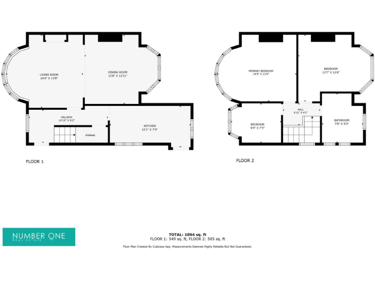
This well-presented three-bedroom semi-detached home from the 1930s offers practical family living close to Newport city centre. The living room and dining area sit under bay windows that bring plentiful light, while the contemporary galley kitchen provides modern fittings and sensible storage. A paved patio leads to a large lawned garden, giving useful outdoor space for children or pets.
The property has clear value drivers for commuters: FTTP broadband, excellent mobile signal, and easy access to the nearby train station and M4 corridor. The house is freehold, mains gas‑heated with a boiler and radiators, and offers a straightforward, traditional layout across two levels — two double bedrooms plus a single that would also work as a home office.
Buyers should be aware of material drawbacks. The overall internal size is small (approximately 786 sq ft) with only one bathroom; on‑street parking only; and the glazing was installed before 2002. The area records above‑average crime and is classified as very deprived, which may affect long‑term resale and financing perceptions. The EPC rating is D and council tax is Band D.
For a family or purchaser seeking an affordable, commuter‑friendly house to modernise or adapt, this home presents a practical, well-located opportunity with a decent plot and room for incremental improvement. Expect routine maintenance and potential upgrades rather than a move‑in‑perfect finish.
3 bedroom semi-detached house for sale in Claremont, Newport, NP20 — £240,000 • 3 bed • 1 bath • 829 ft²
3 bedroom semi-detached house for sale in Henry Wood Close, Newport, NP19 — £220,000 • 3 bed • 1 bath • 4941 ft²
3 bedroom semi-detached house for sale in Robertson Way, Newport, NP20 — £225,000 • 3 bed • 1 bath • 883 ft²
3 bedroom semi-detached house for sale in Mulcaster Avenue, Newport, NP19 — £190,000 • 3 bed • 1 bath • 804 ft²
3 bedroom semi-detached house for sale in Hawarden Road, Newport, NP19 — £210,000 • 3 bed • 1 bath • 863 ft²
3 bedroom semi-detached house for sale in Bessemer Drive, Newport, NP19 — £260,000 • 3 bed • 2 bath • 850 ft²






















































































































