TQ4 6AA - Mixed use property for sale in 49 Torbay Road, TQ4

View on Property Piper

Mixed use property for sale in 49 Torbay Road, TQ4

Summary - 49 TORBAY ROAD PAIGNTON TQ4 6AA

1 bed 1 bath Mixed Use

**Standout Features:**
- Prominent corner location on Torbay Road
- Recently refurbished 2-3 bed apartment with large bedroom
- Mixed-use property with potential for restaurant or other businesses
- Newly upgraded kitchen inventory
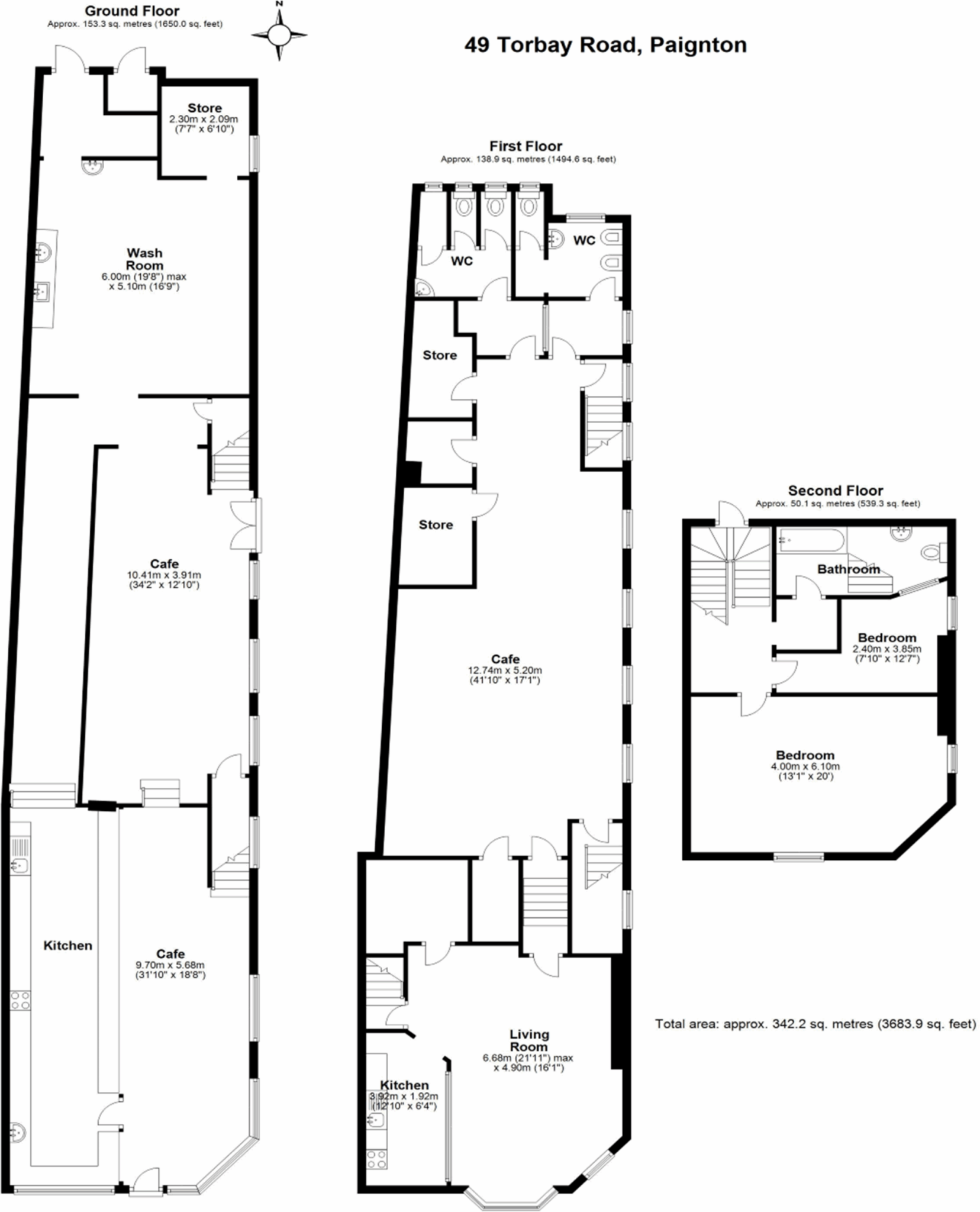
- Overall size of 3,683 sq ft
- Freehold tenure
- Very low council tax band
- Excellent mobile and fast broadband connectivity

**Potential Concerns:**
- High crime rate in the area
- Restaurant areas need further upgrading
- No existing heating system; relies on electric heaters
- Built before 1900, potential for structural concerns

This impressive mixed-use property located in a prime corner position on bustling Torbay Road offers both commercial and residential appeal, perfect for investors or entrepreneurial families. With a recent full refurbishment, the spacious 2-3 bedroom apartment is ready for immediate occupation, featuring a large top-floor bedroom that can easily be converted to suit your needs. The ground and first-floor restaurant spaces provide ample opportunity for a thriving business in a high footfall area known for its year-round visitors.

While the apartment is move-in ready, the restaurant areas require personalization and final touches, making this an ideal project for those looking to create a unique business space. With the infrastructure already in place for commercial use and a newly upgraded inventory, this is a rare opportunity to establish your presence in a vibrant community. Presenting an inviting guide price of £475,000, this versatile property won't be available for long—don’t miss out on the chance to secure a key asset in this sought-after location.

Property Details

Image Descriptions

Floorplan Description

Rooms

Textual Property Features

Detected Visual Features

EPC Details

Nearby Schools

Nearest Bars And Restaurants

,,,,}

Nearest General Shops

,,}

Nearest Grocery shops

,,}

Nearest Supermarkets

,,}

Nearest Religious buildings

,,}

Nearest Medical buildings

,,,}

Nearest Leisure Facilities

,,,,}

Nearest Tourist attractions

,,}

Nearest Train stations

,,,,}

Nearest Bus stations and stops

,,,,}

Nearest Hotels

,,}

Tags

Local Market Stats

AirBnB Data

Similar Properties

Meta

High Res Images

Compatible Images

Low res Images

Thumbnails

Raw Images

High Res Floorplan Images

Compatible Floorplan Images

Low res Floorplan Images

FloorplanImages Thumbnail

Raw Floorplan Images