Spacious home with garage, garden and strong renovation potential.
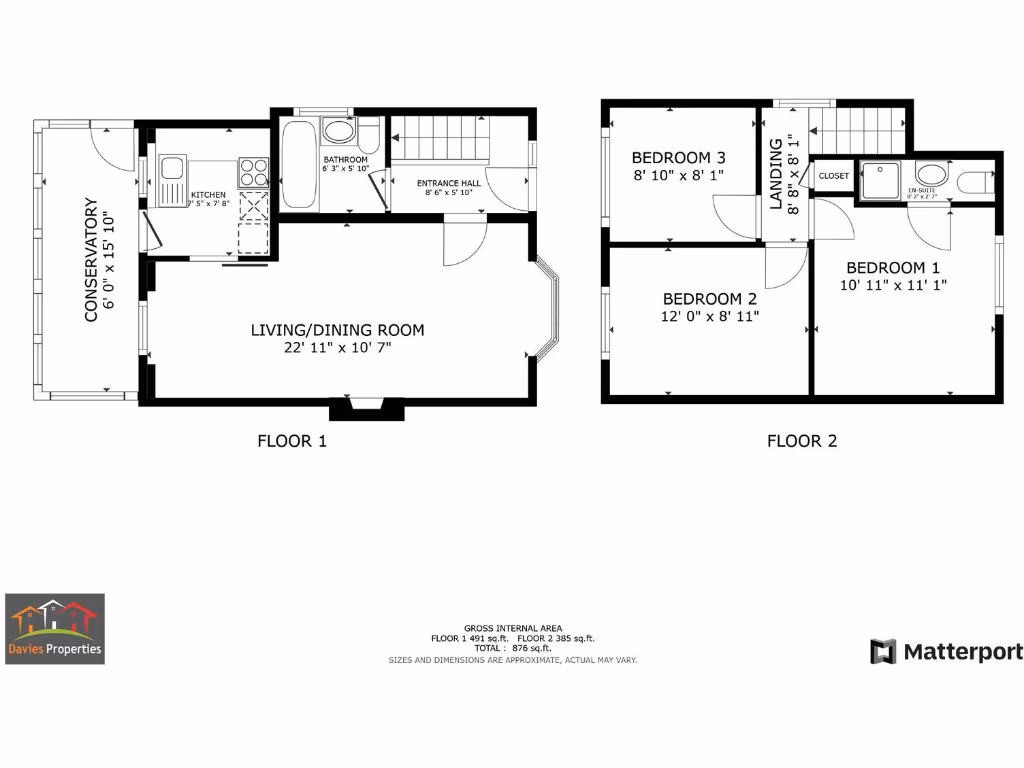
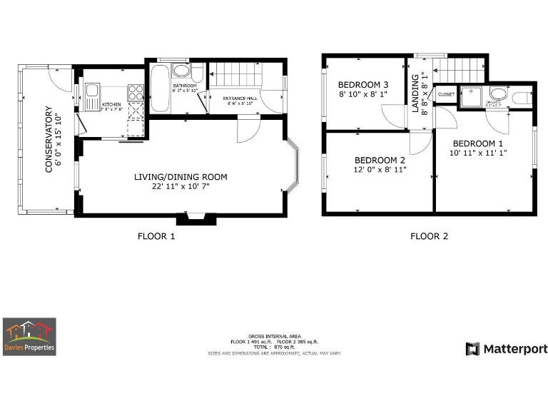
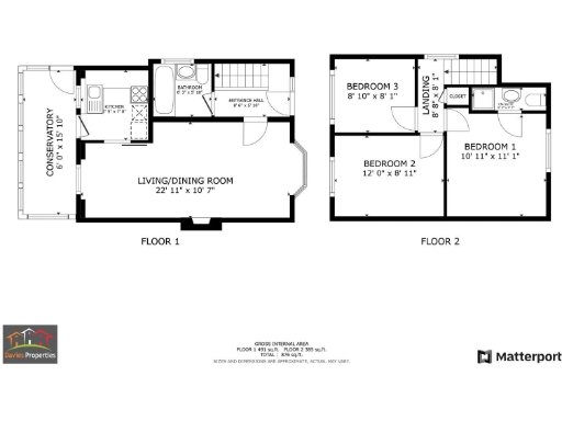
Three bedrooms with principal en-suite shower room
A well-proportioned three-bedroom semi-detached home in a sought-after Oakworth cul-de-sac, ideal for first-time buyers or growing families. The ground floor offers a long through lounge/diner filled with natural light and a bright conservatory that opens onto a mature, low-maintenance rear garden with a paved patio — useful for outdoor entertaining. The fitted kitchen and ground-floor bathroom are functional, while the principal bedroom benefits from an en-suite shower room.
Practical features include a long driveway with room for several cars in tandem and a detached single garage, gas central heating, and uPVC double glazing throughout. Broadband and mobile coverage are strong, and the property sits in an affluent, low-risk area with nearby good primary schools, making it family-friendly.
The house has clearly been cared for but would benefit from modernization in places — cosmetic updating, new finishes, and personalised improvements would significantly increase comfort and value. Sold freehold with an affordable council tax band C and no flooding risk, this property presents a straightforward purchase with clear potential for improvement and return.
Note: the home requires some updating rather than a full refurbishment; buyers should allow a budget for modernising dated fixtures, flooring and decor to suit contemporary tastes.
3 bedroom semi-detached house for sale in Providence Crescent, Oakworth, Keighley, BD22 — £249,995 • 3 bed • 1 bath • 731 ft²
4 bedroom semi-detached house for sale in Moor Drive, Oakworth, Keighley, BD22 7RF, BD22 — £285,000 • 4 bed • 1 bath • 1314 ft²
3 bedroom semi-detached house for sale in Harewood Crescent, Oakworth, Keighley, BD22 — £190,000 • 3 bed • 1 bath • 619 ft²
3 bedroom semi-detached house for sale in Moorcroft Avenue, Oakworth, Keighley, BD22 — £179,995 • 3 bed • 1 bath • 725 ft²
3 bedroom semi-detached house for sale in Bronte Drive, Oakworth,, BD22 — £189,950 • 3 bed • 1 bath • 847 ft²
3 bedroom semi-detached house for sale in Harewood Crescent, Oakworth, Keighley, BD22 — £209,950 • 3 bed • 1 bath


































































