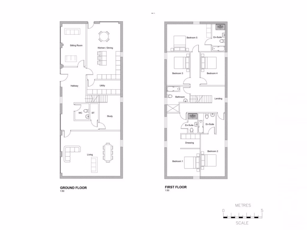
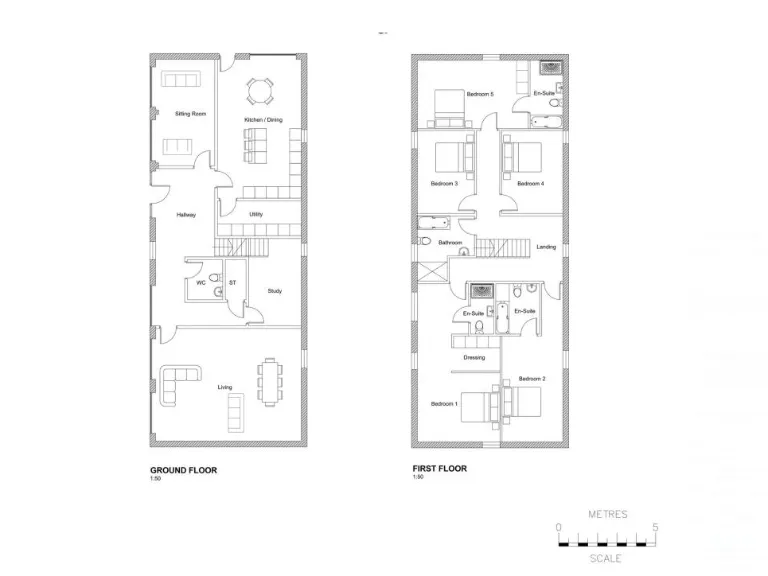
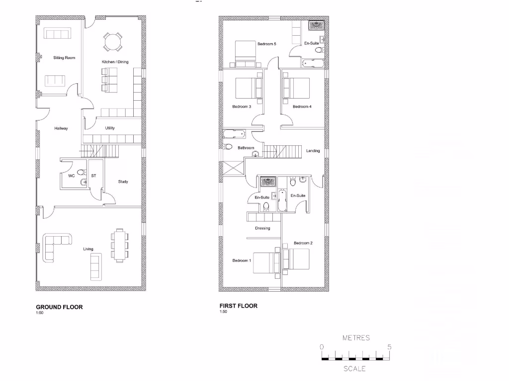
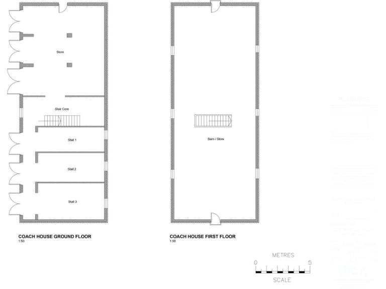
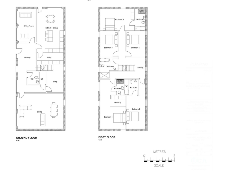
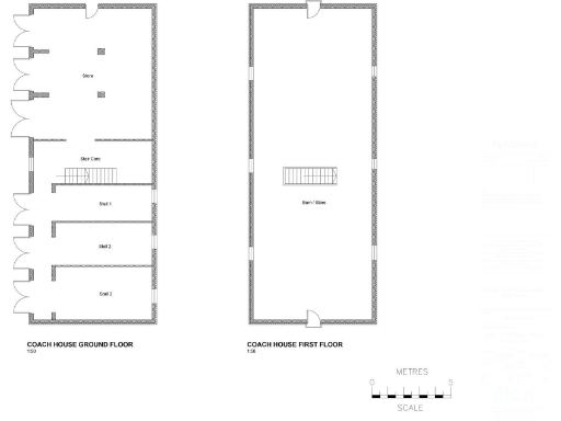
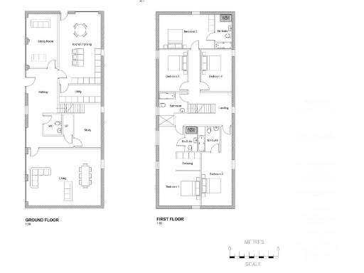
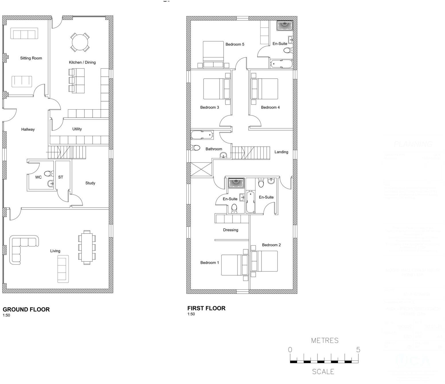
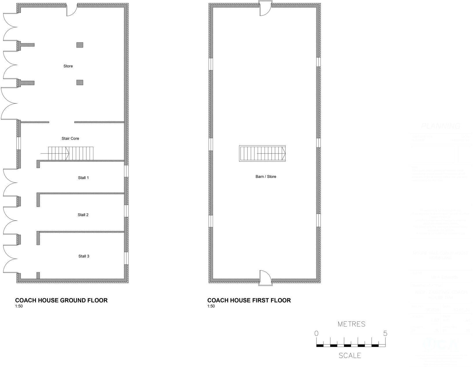
**Property Highlights:**
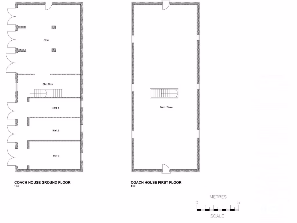
- **Type:** Detached barn conversion with planning permission.
- **Size:** Approximately 3000 sq ft.
- **Bedrooms:** 5 spacious bedrooms.
- **Plot:** Over an acre, with a beautiful garden and backing onto Bridgewater canal.
- **Setting:** Tree-lined driveway and surrounded by scenic Cheshire countryside.
- **Location:** Moore village, close to amenities in Stockton Heath and Warrington, with excellent access to motorways and Liverpool Airport.
- **Current Condition:** Requires renovation; potential for customization.
- **Planning Details:** Granted planning permission for significant renovation, reference 21/00670/FUL.
- **Affordability:** Priced at £740,000; council tax noted as expensive.
**Summary:**
Unlock the potential of this exceptional five-bedroom detached barn conversion nestled within the historic Moore Hall estate. Offering a generous footprint of approximately 3000 sq ft, this property is a blank canvas for creative buyers looking to design their dream home. Picture an open plan kitchen diner, spacious lounge, and large garden, all while basking in the beauty of the tranquil Bridgewater canal views. Set on a remarkably large plot that stretches over an acre, the property is privately accessed via a picturesque tree-lined driveway, promising both exclusivity and serenity.
Though the barn conversion requires renovation, its advantageous planning permission paves the way for a modern luxury home in a highly sought-after location. With local amenities and excellent primary and secondary schools within reach, as well as low crime rates, this property is ideal for families seeking a peaceful retreat without sacrificing convenience. For those eyeing a rewarding investment or distinct custom home, opportunities like this are rare. Act swiftly to secure your slice of countryside charm before it's gone!
Land for sale in Hobb Lane, Warrington, WA4 — £795,000 • 4 bed • 3 bath • 3000 ft²
10 bedroom country house for sale in Hobb Lane, Moore, WA4 — £1,565,000 • 10 bed • 5 bath • 6089 ft²
4 bedroom detached house for sale in Moor Lane, Frodsham, Cheshire, WA6 — £300,000 • 4 bed • 1 bath • 5081 ft²
Barn conversion for sale in Lafford Lane, Upholland, Skelmersdale, WN8 — £399,950 • 1 bed • 1 bath
3 bedroom barn conversion for sale in The Shires, Warrington, WA4 — £425,000 • 3 bed • 2 bath • 1137 ft²
Land for sale in Dwelling B, Langtree Hall Farm Barn, Langtree Lane, Standish, WN6 0QQ, WN6 — £350,000 • 1 bed • 1 bath • 3393 ft²


























































































































