**Standout Features:**
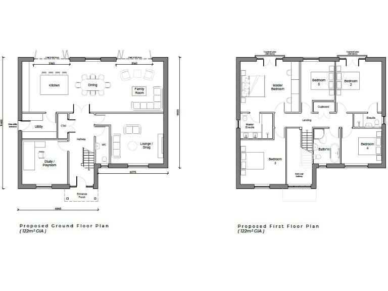
- Luxurious 5 double bedrooms, architecturally designed for modern living
- Expansive open-plan kitchen, diner, and family room
- Approved planning permission for bespoke construction
- Secluded driveway and detached garage
- Semi-rural location with close proximity to Southport amenities
- Generously sized garden ideal for outdoor entertaining
**Summary:**
Seize the rare opportunity to build your dream home in a tranquil semi-rural setting on New Cut Lane, Southport. This exceptional plot comes with approved plans for a luxurious 5-bedroom detached residence (totaling 275 sq m, including a garage). Imagine an open-plan living space designed for both relaxation and entertaining, with large doors seamlessly connecting the indoors to a beautifully landscaped garden—a perfect backdrop for family gatherings and summer barbecues.
Offering five generously sized bedrooms, this unique property ensures ample space for family, guests, or even a home office, all while providing modern comforts and a stylish aesthetic. The seclusion of this location provides an idyllic lifestyle, with nature at your doorstep yet just a short drive from vibrant Southport's shops, schools, and recreational facilities.
While the plans facilitate a contemporary living experience, it's essential to consider the property's current state and the responsibilities that come with new construction. Don't miss your chance to bring your vision to life! Secure this property today and start planning your exclusive sanctuary tailored to your needs.
Land for sale in New Cut Lane, Birkdale, Southport, Merseyside, PR8 3DW, PR8 — £250,000 • 1 bed • 1 bath • 2952 ft²
5 bedroom detached house for sale in Trafalgar Road, Birkdale, Southport, Merseyside, PR8 2NL, PR8 — £1,250,000 • 5 bed • 3 bath • 3643 ft²
Land for sale in Salford Road, Southport, PR8 — £275,000 • 5 bed • 2 bath • 3391 ft²
Plot for sale in Victoria Road, Formby, Liverpool, L37 — £995,000 • 5 bed • 5 bath • 4075 ft²
Plot for sale in Victoria Road, Formby, Liverpool, L37 — £995,000 • 6 bed • 6 bath • 4463 ft²
5 bedroom detached house for sale in Leamington Avenue, Southport, Merseyside, PR8 — £700,000 • 5 bed • 4 bath • 490 ft²


























































