**Standout Features:**
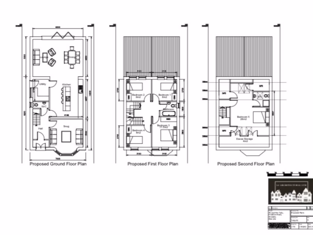
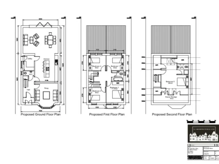
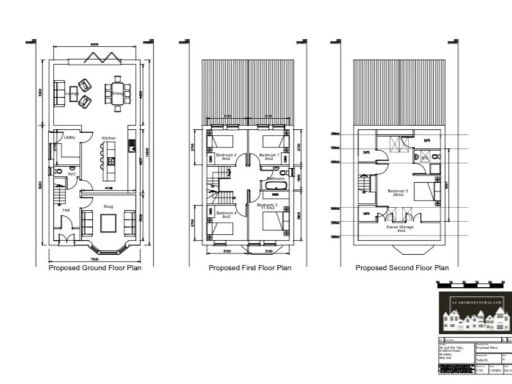
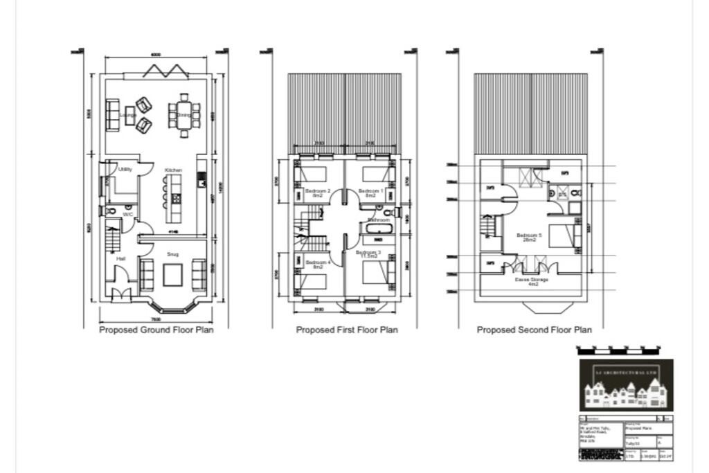
- **Approved Planning Permission:** Outline permission for a five-bedroom detached home (Reference Number: DC/2024/01884).
- **Spacious Plot:** Approximately 9m wide by 35m long, allowing for side alleyways.
- **Modern Design:** Proposed layout features modern open-plan living spaces, utility room, and a substantial master bedroom with en suite.
- **Private Outdoor Space:** Generous rear garden (approx. 20m x 9m) and driveway parking for 2-3 cars.
- **Location Benefits:** Close to local amenities, schools rated ‘Good’ or ‘Outstanding’, and convenient transport links.
This exceptional residential building plot on Salford Road, Southport, presents a rare investment opportunity for developers or self-builders. With outline planning permission secured for a stunning five-bedroom detached family home, you can create a bespoke living space tailored to your needs. The well-designed proposal includes generous open-plan areas for family life, ample bedrooms, and essential modern conveniences like a utility room and cloakroom.
Nestled in a peaceful, established neighborhood, you will enjoy easy access to educational institutions with strong ratings, and a variety of local amenities, including cafes, shops, and beautiful green spaces. The potential for both personal comfort and investment growth makes this plot not just a piece of land, but a canvas for your dream home. As opportunities like this are limited, don’t miss your chance to secure a prime plot in an affluent setting—act now to bring your vision to life.
Plot for sale in College Avenue, Formby, Liverpool, L37 — £800,000 • 5 bed • 5 bath • 5800 ft²
Land for sale in New Cut Lane, Birkdale, Southport, Merseyside, PR8 3DW, PR8 — £250,000 • 1 bed • 1 bath • 2952 ft²
Land for sale in Land for Sale, Leamington Road, Southport, PR8 3LB, PR8 — £220,000 • 1 bed • 1 bath
Land for sale in Land Adjacent To Lime Tree Cottage, Parrs Lane, Aughton, Ormskirk, Lancashire, L39 — £595,000 • 1 bed • 1 bath • 25265 ft²
4 bedroom detached house for sale in Mill Lane, Southport, Merseyside, PR9 — £520,000 • 4 bed • 1 bath • 1480 ft²
Plot for sale in Victoria Road, Formby, Liverpool, L37 — £995,000 • 5 bed • 5 bath • 4075 ft²


























































