Chain-free renovation opportunity close to town amenities and schools.
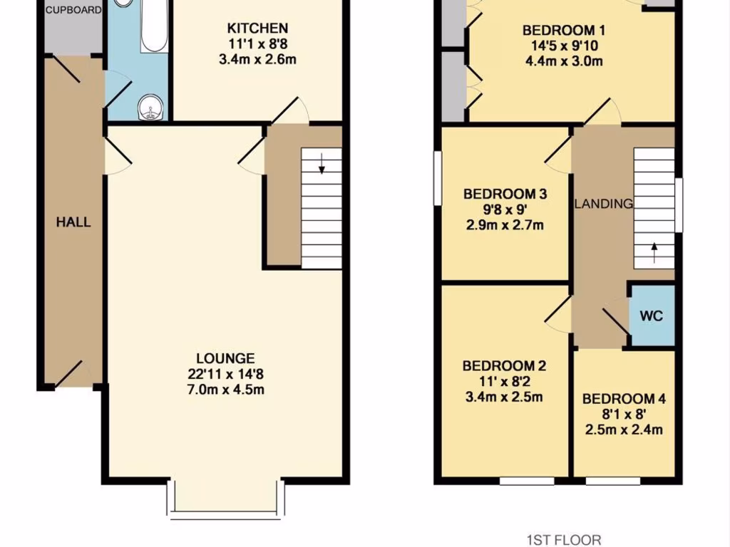
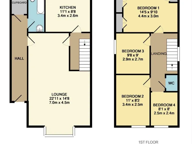
Four bedrooms, including three doubles and one single
Set on a quiet no-through road in the heart of Hawkhurst, this four-bedroom end-terrace offers a substantial renovation opportunity within walking distance of the High Street and local amenities. The property is chain-free and freehold, with a private driveway providing off-street parking and a secluded rear garden for outdoor use.
Internally the house retains period character such as a large bay window and an unused Victorian fireplace, plus a bright 22ft living/dining room. The layout includes three double bedrooms and a single bedroom, a fitted kitchen with door to the garden, and a single family bathroom. An upstairs WC once existed and could be reinstated to improve family practicality.
This home requires complete modernisation throughout: mechanical, electrical and decorative upgrades will be needed, and images suggest potential localized damp that should be investigated. EPC rating E and solid brick walls (likely no cavity insulation) mean buyers should budget for energy and heating improvements. For buyers seeking a project in a highly desirable village location, the house provides scope to create a comfortable, characterful family home or a worthwhile investment after refurbishment.
3 bedroom semi-detached house for sale in Available With No Onward Chain in Hawkhurst, TN18 — £425,000 • 3 bed • 2 bath • 979 ft²
3 bedroom detached house for sale in Highgate Hill, Hawkhurst, TN18 — £565,000 • 3 bed • 2 bath • 1140 ft²
2 bedroom end of terrace house for sale in Level Walking Distance To Hawkhurst Shops, TN18 — £275,000 • 2 bed • 1 bath • 799 ft²
4 bedroom detached house for sale in Theobalds, Hawkhurst, Cranbrook, Kent, TN18 — £725,000 • 4 bed • 3 bath • 2345 ft²
4 bedroom detached house for sale in Highgate Hill, Hawkhurst, Cranbrook, Kent, TN18 — £595,000 • 4 bed • 1 bath • 2205 ft²
4 bedroom detached house for sale in Highgate Hill, Hawkhurst, Cranbrook, Kent, TN18 — £475,000 • 4 bed • 1 bath • 1464 ft²










































































