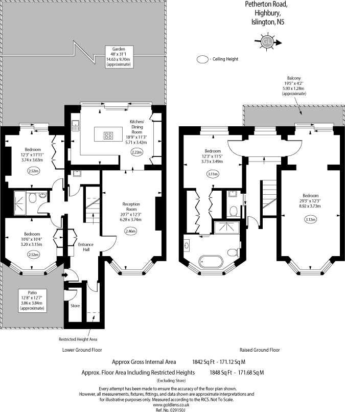
Spacious split-level three-bedroom home with an exceptional 48ft private rear outdoor space.
Three double bedrooms including principal suite with dressing area and ensuite
A beautifully refurbished three-bedroom raised-ground and lower-ground maisonette offering generous period proportions and high-quality contemporary finishes. The principal bedroom occupies the raised floor and includes a fitted dressing area and ensuite; two further double bedrooms and a family bathroom sit on the lower level. High ceilings, bay windows to the front and herringbone flooring in principal rooms retain period character while the kitchen/dining room and bathrooms are newly fitted.
The property’s standout feature is the private rear garden of approximately 48ft, accessed via large sliding doors from the kitchen/dining/family room — rare for this location and ideal for family living or entertaining. A second reception room at raised-ground level provides flexible living space, while the front outlook over Petherton Green adds street presence and light.
Practical details are straightforward: this is a leasehold property with 998 years remaining, an annual service charge around £3,000 and ground rent £250. Transport links are excellent with Highbury & Islington, Arsenal and Drayton Park all within easy walking distance, making commutes to the City convenient.
Buyers should note the property sits within an inner-city area with average local crime and average deprivation measures; there are no flooding risks. Overall, the home suits professional families seeking a move-in-ready period conversion with a substantial private garden and modern finishes, or investors targeting high-demand Highbury/Islington rental stock.
2 bedroom flat for sale in Petherton Road, Highbury, London, N5 — £975,000 • 2 bed • 1 bath • 1179 ft²
3 bedroom apartment for sale in Petherton Road, Canonbury, London, N5 2QX, N5 — £2,250,000 • 3 bed • 2 bath • 1837 ft²
2 bedroom apartment for sale in Highbury Hill, London, N5 — £900,000 • 2 bed • 1 bath • 1080 ft²
2 bedroom apartment for sale in Petherton Road, London, N5 — £1,000,000 • 2 bed • 3 bath • 1323 ft²
3 bedroom maisonette for sale in Lucerne Road, London, N5 — £1,300,000 • 3 bed • 3 bath • 1067 ft²
3 bedroom maisonette for sale in Westbourne Road,
Islington, N7 — £1,100,000 • 3 bed • 3 bath • 1220 ft²






























































































































































































