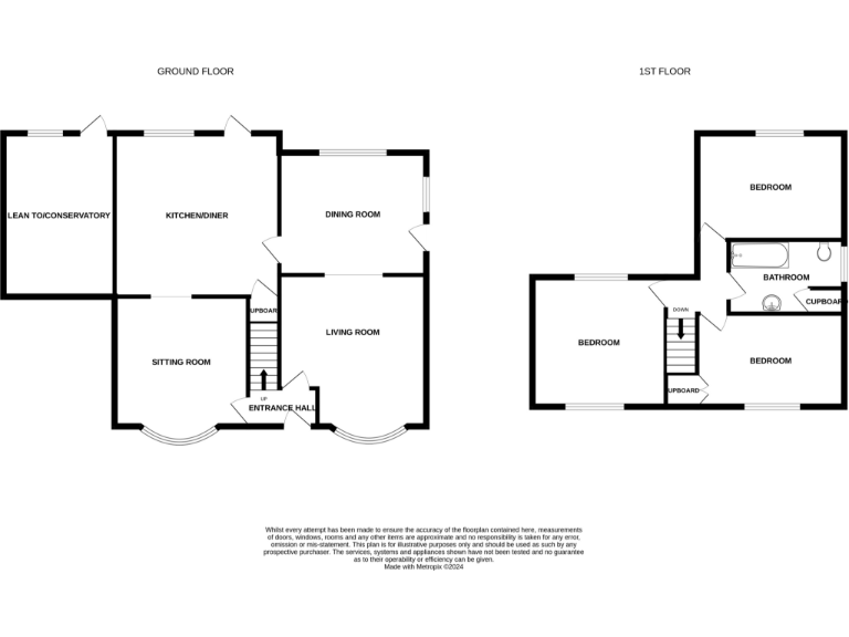
**Standout Features:**
- Spacious detached house on a generous plot
- Three bedrooms and two reception rooms
- Large rear garden with stables, barn, and outdoor workshop
- Ample off-road parking with front driveway and separate access
- Ideal location with good motorway links
- Council Tax Band D, Freehold, EPC rating E
**Summary:**
Discover this charming detached home nestled on an expansive plot in Bedworth, offering a unique combination of spacious family living and outdoor potential. The property features a well-designed layout that includes a welcoming entrance hall, a cozy lounge, a breakfast kitchen with ample storage, and two additional reception rooms for versatile use. With three comfortable bedrooms and a family bathroom, this residence is perfect for families seeking comfort and practicality.
Step outside to enjoy a large rear garden that boasts stables, a barn, and a workshop—ideal for those with equestrian interests or hobbies requiring extra space. The front driveway provides plenty of parking, ensuring convenience for you and your guests. While the property features vintage-inspired interiors, it presents an exciting opportunity for renovation, allowing you to infuse your personal touch.
Though the EPC rating is E, the property is well-positioned with excellent motorway links, ensuring you have access to essential amenities nearby. Don’t miss your chance to secure this versatile family home—properties with such remarkable outdoor space and flexibility are in high demand and won’t last long!
3 bedroom detached house for sale in Newtown Road, Bedworth, CV12 — £399,999 • 3 bed • 1 bath • 3514 ft²
4 bedroom character property for sale in Ansley Common, Nuneaton, CV10 — £825,000 • 4 bed • 2 bath • 2500 ft²
3 bedroom semi-detached house for sale in Hinckley Road, Barwell, LE9 — £460,000 • 3 bed • 1 bath • 819 ft²
3 bedroom semi-detached house for sale in Newtown Road, Bedworth, CV12 — £280,000 • 3 bed • 1 bath • 716 ft²
3 bedroom end of terrace house for sale in Coventry Road, Bedworth , CV12 — £155,000 • 3 bed • 1 bath • 937 ft²
3 bedroom semi-detached house for sale in Newtown Road, CV12 — £270,000 • 3 bed • 1 bath • 929 ft²










































































