Bright two-bedroom flat with balcony and easy access to Oxford city centre.
Chain-free ground-floor flat with balcony overlooking communal gardens
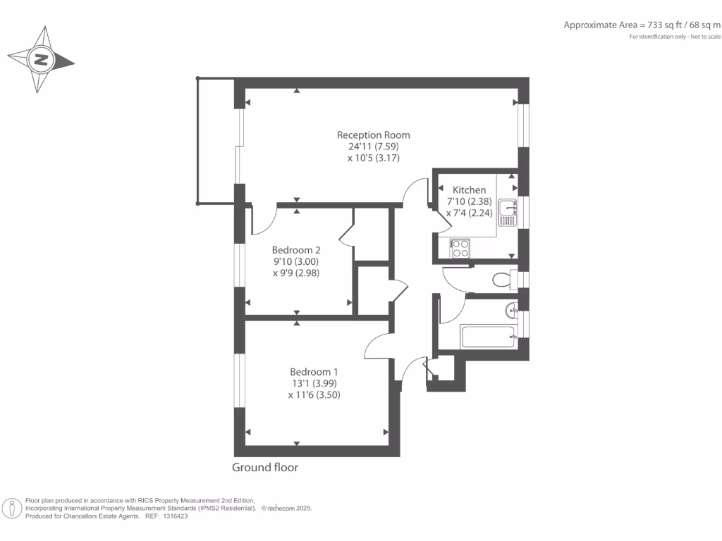
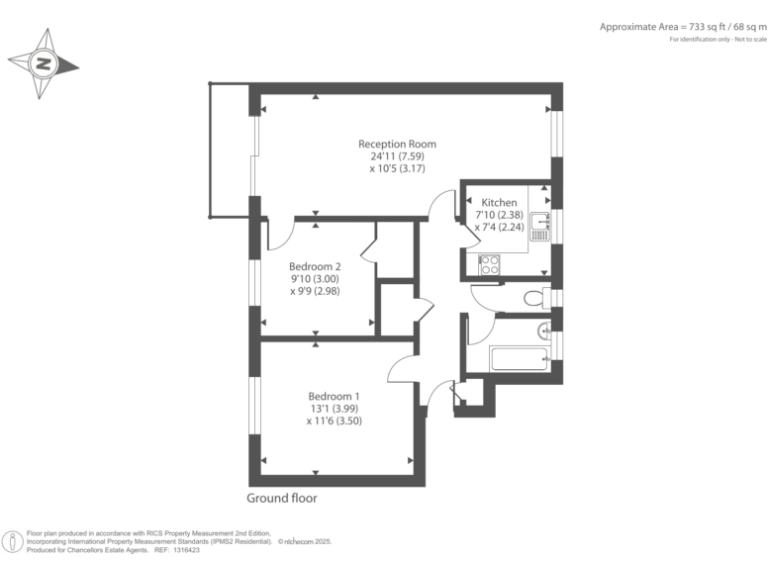
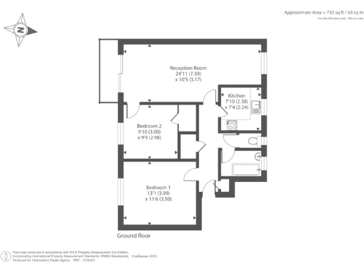
A bright ground-floor flat in Cholesbury Grange, offered chain-free and ready for a new owner. The apartment has two bedrooms with built-in wardrobes, a reception room opening onto a balcony and views over the communal gardens — a practical layout for first-time buyers or couples.
The building dates from the late 1960s/early 1970s and has mid-century brick elevations, double glazing (installation date unknown) and gas central heating via boiler and radiators. The kitchen receives good natural light but currently lacks appliances and shows signs of needing cosmetic updating, offering potential to personalise and add value.
Practical details suit urban living: easy transport links into Oxford city centre, an average overall size of about 733 sq ft, no flood risk and affordable council tax. The flat is leasehold — prospective buyers should check lease length and any service/ground rent obligations. Communal maintenance and external weathering are visible; factor in ongoing upkeep costs.
2 bedroom flat for sale in Littlemore, Oxford, OX4 — £230,000 • 2 bed • 1 bath • 656 ft²
2 bedroom flat for sale in Oxford, Oxfordshire, OX3 — £425,000 • 2 bed • 2 bath • 818 ft²
2 bedroom flat for sale in Hawksmoor Road, Oxford, OX2 — £280,000 • 2 bed • 1 bath • 524 ft²
2 bedroom flat for sale in Headington, Oxford, OX3 — £295,000 • 2 bed • 1 bath • 711 ft²
2 bedroom flat for sale in Evenlode Tower, Oxford, OX4 — £220,000 • 2 bed • 1 bath • 645 ft²
2 bedroom apartment for sale in The Avenue, Oxford, OX1 — £265,000 • 2 bed • 1 bath • 696 ft²






















































































