Affordable starter renovation close to shops and buses.
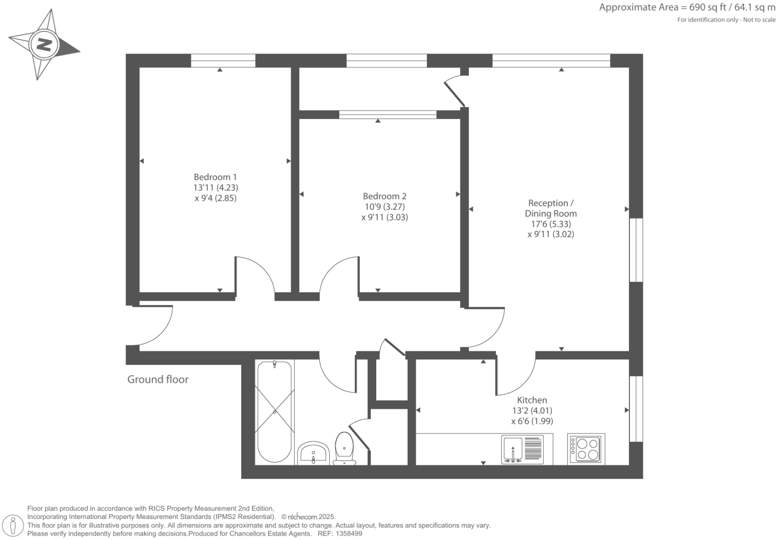
Chain-free two-bedroom flat with private balcony
This chain-free two-bedroom flat in Evenlode Tower offers a straightforward blank canvas close to local shops and regular bus routes. The apartment includes a reception room, separate kitchen, private balcony and a practical layout across approximately 645 sq ft — a good footprint for a starter home or rental unit.
The building’s mid-century/brutalist character brings generous windows and city living, but the apartment needs renovation throughout: expect cosmetic updating, modern heating installation, and general upgrading to bring it up to contemporary standards. Heating currently relies on electric room heaters and the property runs on electricity only.
There are 86 years remaining on the lease (125-year original term from 1986), which is workable but should be reviewed with a solicitor. The local area is an urban cultural mix with convenient amenities nearby, though it has higher crime and significant area deprivation; purchasers should factor location-context and potential management or security needs into their plans.
Given the proximity to Oxford (about 3.2 miles) and frequent buses, the flat suits first-time buyers looking for an affordable entry point or investors targeting refurbishment opportunities. The council tax band is low, and the chain-free sale allows a quicker transaction for buyers ready to renovate.
2 bedroom flat for sale in Littlemore, Oxford, OX4 — £230,000 • 2 bed • 1 bath • 656 ft²
2 bedroom flat for sale in Lizmans Court, Cowley, OX4 — £250,000 • 2 bed • 1 bath • 376 ft²
1 bedroom flat for sale in East Oxford, Oxford, OX4 — £220,000 • 1 bed • 1 bath • 377 ft²
2 bedroom flat for sale in Headington, Oxford, OX3 — £260,000 • 2 bed • 1 bath • 714 ft²
2 bedroom flat for sale in Oxford, Oxfordshire, OX3 — £425,000 • 2 bed • 2 bath • 818 ft²
1 bedroom flat for sale in East Oxford, Oxford, OX4 — £235,000 • 1 bed • 1 bath • 430 ft²






















































