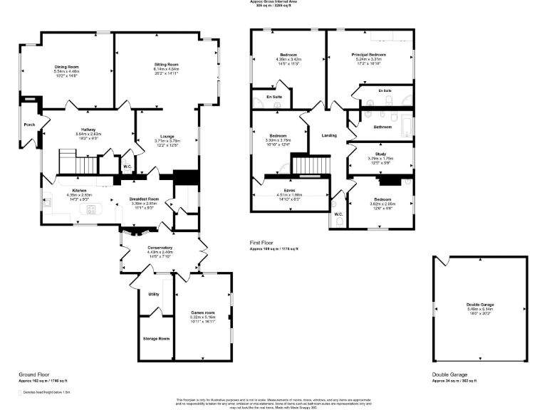
**Standout Features:**
- Spacious detached family home with 5 bedrooms and 4 bathrooms (2 ensuite).
- Expansive 119ft south-facing rear garden with heated swimming pool and outdoor dining space.
- Generous entrance hall, two impressive reception rooms, and a modern fitted kitchen/breakfast room with central island.
- Converted garage for versatile use as a gym/games room.
- Located in a sought-after area with excellent local schools and amenities.
- Driveway parking and double garage with EV charging capability.
- Low crime rate and affluent neighborhood.
Nestled in the sought-after west side of Purley, this impressive five-bedroom Tudor Revival home has been designed for spacious family living. The generous entrance hall leads to expansive reception areas, including a stylish dining room and a large L-shaped living room that flows seamlessly into the sunny, private garden—perfect for entertaining and family relaxation. The modern kitchen boasts ample space, a central island, and access to a cozy conservatory. Upstairs, you’ll find five well-proportioned bedrooms, two with ensuite showers, and a family bathroom, catering exceptionally to family needs.
Outside, the 119-foot south-facing garden is a highlight, featuring plush lawn space, a large paved patio for alfresco dining, and a heated enclosed swimming pool for year-round enjoyment. Driveway parking and a double garage provide convenience and security, with additional flexibility for an EV charging point. The home is ideally situated close to good schools and local amenities, enhancing its appeal for families. Although the property is in excellent condition, potential buyers should note the need for some insulation upgrades. This home is perfect for those looking for comfort, space, and the potential to make it their own. Don’t miss this exclusive opportunity to secure a sizable family residence in a prestigious area!
5 bedroom detached house for sale in West Purley, Surrey, CR8 — £1,150,000 • 5 bed • 3 bath • 2546 ft²
5 bedroom semi-detached house for sale in West Purley, Surrey, CR8 — £900,000 • 5 bed • 2 bath • 2109 ft²
5 bedroom detached house for sale in Peaks Hill, Purley, Surrey, CR8 — £1,600,000 • 5 bed • 2 bath • 4284 ft²
5 bedroom detached house for sale in Woodside Road, Purley, CR8 — £995,000 • 5 bed • 3 bath • 2196 ft²
4 bedroom detached house for sale in Purley, Surrey, CR8 — £1,000,000 • 4 bed • 3 bath • 2263 ft²
5 bedroom detached house for sale in Sanderstead, Surrey, CR2 — £1,000,000 • 5 bed • 3 bath • 2569 ft²






































































































