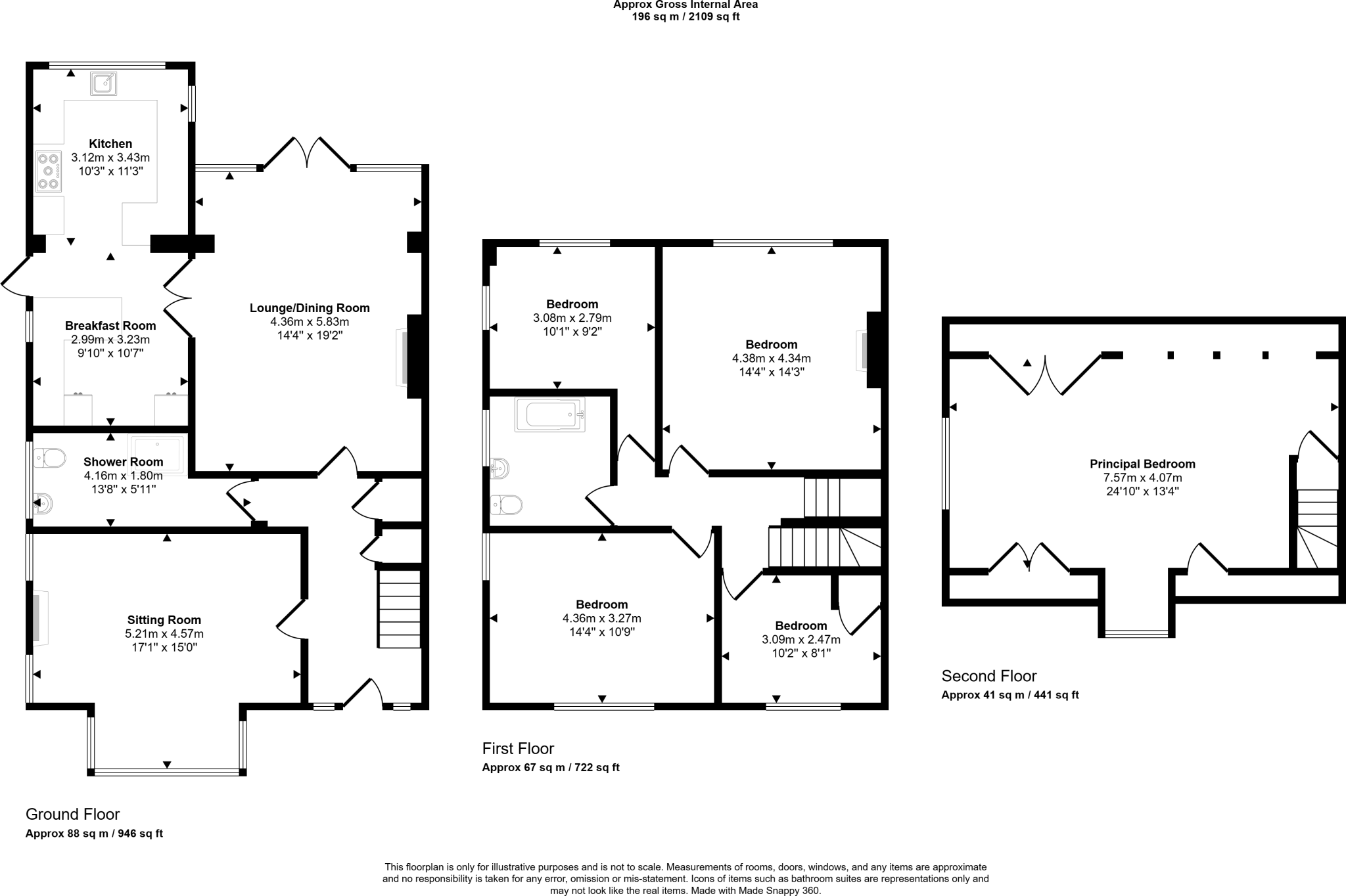
**Standout Features:**
- Spacious five-bedroom semi-detached family home
- Arranged over three floors with ample living space
- Generous 134ft rear garden, perfect for relaxation and entertaining
- Well-equipped kitchen/breakfast room with modern shaker-style units
- Gated driveway allowing off-street parking for multiple vehicles
- Proximity to excellent local schools and transport links
**Potential Downsides:**
- Average size for a property in this price range
- Cavity walls were built without insulation, which may require attention
This impressive semi-detached home in a desirable West Purley location offers both comfort and convenience. Spanning across three floors, the property features two spacious reception rooms, a well-fitted kitchen/breakfast area, and potential for personal touches throughout. The ground floor boasts a practical shower room, while upstairs, you’ll find four spacious bedrooms accompanied by a family bathroom. The top floor hosts a large bedroom with useful eaves storage.
The standout rear garden of 134 feet provides a serene escape with a patio area and a pond, ideal for family gatherings or quiet evenings outdoors. The gated 64ft driveway accommodates multiple vehicles, ensuring security and ease of access. This home is also nestled near reputable schools and well-connected transport links, making it perfect for families keen on education and commutes. 
While the property maintains a sound structure typical of its 1930s construction, prospective buyers should consider potential energy efficiency upgrades due to the lack of insulation. This gem won't last long in today’s market—don’t miss your chance to secure your family’s future in a thriving community!
 3 bedroom detached house for sale in West Purley, Surrey, CR8 — £800,000 • 3 bed • 1 bath • 1574 ft²
 3 bedroom detached house for sale in West Purley, Surrey, CR8 — £800,000 • 3 bed • 1 bath • 1574 ft² 5 bedroom detached house for sale in Woodside Road, Purley, CR8 — £995,000 • 5 bed • 3 bath • 2196 ft²
 5 bedroom detached house for sale in Woodside Road, Purley, CR8 — £995,000 • 5 bed • 3 bath • 2196 ft² 4 bedroom detached house for sale in West Purley, Surrey, CR8 — £930,000 • 4 bed • 2 bath • 1781 ft²
 4 bedroom detached house for sale in West Purley, Surrey, CR8 — £930,000 • 4 bed • 2 bath • 1781 ft² 5 bedroom semi-detached house for sale in The Bridle Road, West Purley, CR8 — £850,000 • 5 bed • 2 bath • 2500 ft²
 5 bedroom semi-detached house for sale in The Bridle Road, West Purley, CR8 — £850,000 • 5 bed • 2 bath • 2500 ft² 5 bedroom detached house for sale in West Purley, Surrey, CR8 — £1,150,000 • 5 bed • 3 bath • 2546 ft²
 5 bedroom detached house for sale in West Purley, Surrey, CR8 — £1,150,000 • 5 bed • 3 bath • 2546 ft² 4 bedroom detached house for sale in Woodcrest Road, Purley, CR8 — £950,000 • 4 bed • 2 bath • 2445 ft²
 4 bedroom detached house for sale in Woodcrest Road, Purley, CR8 — £950,000 • 4 bed • 2 bath • 2445 ft²










































































































