LS17 7JQ - 3 bed generous three bedroom semi in Leeds North East, LS17…

View on Property Piper

3 bedroom semi-detached house for sale in Hawks Nest Gardens East, Leeds, LS17

Summary - Hawks Nest Gardens East, Leeds LS17 7JQ

3 bed 1 bath Semi-Detached

Well-presented three-bed semi with solar, large driveway and flexible family living in sought-after LS17..
- Generous plot with family-size gardens
- Open-plan kitchen/living with bi-fold doors
- Solar panels plus battery storage installed
- Cat6 wiring and Hive smart controls throughout
- Block-paved driveway for 2–3 vehicles off-street
- Single family bathroom plus ground-floor guest W/C
- Loft/roof alterations present; survey recommended
- Double glazing present; install date unknown
Set on a generous plot in LS17, this three-bedroom semi-detached home pairs mid-20th-century character with modern upgrades. The standout open-plan kitchen/living with bi-fold doors creates a bright family hub, while a separate lounge offers quiet space. Practical additions include solar panels with battery storage, Cat6 wiring throughout and Hive controls for lower running costs and modern convenience.

Externally the property has a wide block-paved driveway for two to three vehicles and decent family-size gardens, providing low-maintenance kerb appeal and private outdoor space. The construction date (1930–1949) and filled cavity walls point to solid, established build quality, but buyers should note there have been loft/roof alterations and the double glazing install date is unknown — these may need checking in survey reports.

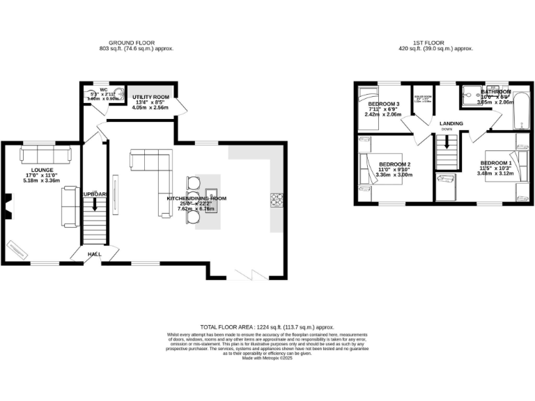
Accommodation is arranged over two floors: hall, lounge, large kitchen/family room, utility and ground-floor guest W/C, with three bedrooms and a family bathroom upstairs. For families, the location scores highly — very affluent area, low crime, excellent mobile signal and fast broadband, plus several well-rated primary and secondary schools close by. Overall this is a well-presented, low-maintenance family home with strong energy credentials and flexible living space; buyers should confirm exact garden dimensions and investigate any work from loft/roof changes and glazing age during purchase surveys.

Property Details

Brochure Descriptions

Image Descriptions

Floorplan Description

Rooms

Textual Property Features

Target Audience

AI Tags

Detected Visual Features

EPC Details

Nearby Schools

Nearest Bars And Restaurants

,,,,}

Nearest General Shops

,,}

Nearest Grocery shops

,,}

Nearest Supermarkets

,,}

Nearest Religious buildings

,,}

Nearest Medical buildings

,,,}

Nearest Airports

}

Nearest Leisure Facilities

,,,,}

Nearest Tourist attractions

,,}

Nearest Train stations

,,,,}

Nearest Bus stations and stops

,,,,}

Nearest Hotels

,,}

Tags

Local Market Stats

Similar Properties

Meta

High Res Images

Compatible Images

Low res Images

Thumbnails

Raw Images

High Res Floorplan Images

Compatible Floorplan Images

Low res Floorplan Images

FloorplanImages Thumbnail

Raw Floorplan Images