**Standout Features:**
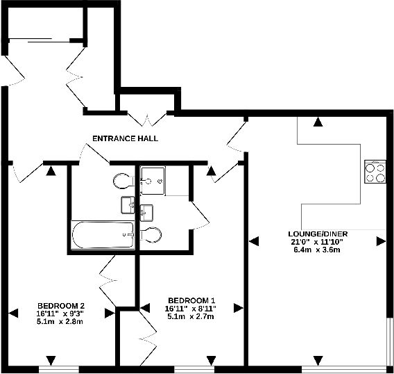
- Spacious two double bedroom apartment (710 sq ft)
- Contemporary open plan kitchen and living area with Bosch appliances
- Secure under-croft parking with electric car charging points
- Elegant bathrooms with luxury finishes and modern fixtures
- Energy-efficient design with solar panels
- Residents' gym and communal Zen Garden
- Chain-free with a 999-year lease
- Walking distance to Penarth town and seaside
**Potential Downsides:**
- Above average crime rate in the local area
- Average service charge of £2000
Embrace the contemporary lifestyle in this stunning two-bedroom apartment at Windsor Gardens, Penarth. Boasting a generous 710 sq ft of elegantly designed living space, this first-floor home is flooded with natural light through its floor-to-ceiling windows. Perfect for hosting family and friends, the open-plan kitchen and living area is seamlessly fitted with high-end Bosch appliances, offering both style and functionality. Each bedroom is spacious, with the master enjoying a luxurious en-suite, complemented by a stylish main bathroom featuring beautiful Mandarin Stone finishes.
This new build development prioritizes modern living with energy-efficient systems, including solar panels, and shared amenities such as a well-equipped gym and a serene communal Zen Garden, ideal for relaxation. Accessibility is a highlight, with lifts providing easy access from secure undercroft parking — a rare convenience in city living. Although the area has an above-average crime rate, the inviting community spirit, proximity to picturesque Penarth's beaches, vibrant shops, and excellent transport links to Cardiff city center will captivate families and young professionals alike.
Don’t miss out on this chain-free opportunity. Experience luxury and convenience in one of the Vale’s most sought-after locales!
2 bedroom apartment for sale in Windsor Gardens Windsor Road, Penarth, Cardiff, CF64 — £360,000 • 2 bed • 2 bath • 753 ft²
2 bedroom apartment for sale in Windsor Gardens Windsor Road, Penarth, Cardiff, CF64 — £300,000 • 2 bed • 2 bath • 710 ft²
2 bedroom apartment for sale in Windsor Gardens, Windsor Road, Penarth, CF64 — £410,000 • 2 bed • 2 bath • 850 ft²
2 bedroom apartment for sale in Windsor Gardens, Penarth, CF64 — £410,000 • 2 bed • 2 bath • 790 ft²
2 bedroom apartment for sale in Windsor Gardens Windsor Road, Penarth, Cardiff, CF64 — £365,000 • 2 bed • 2 bath • 753 ft²
2 bedroom apartment for sale in Windsor Gardens, Penarth, CF64 — £375,000 • 2 bed • 2 bath • 850 ft²






































































