**Key Features:**
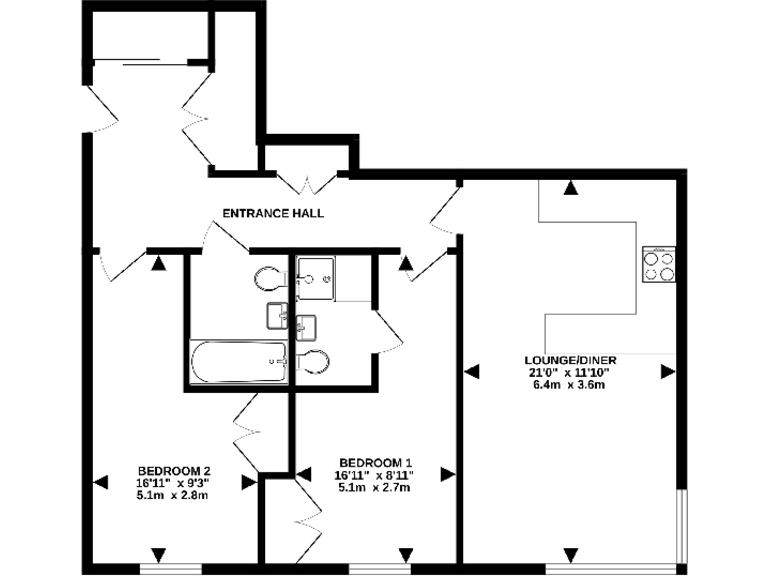
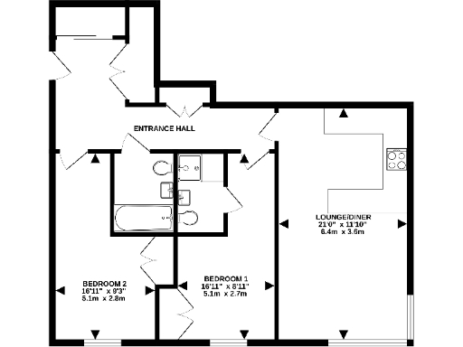
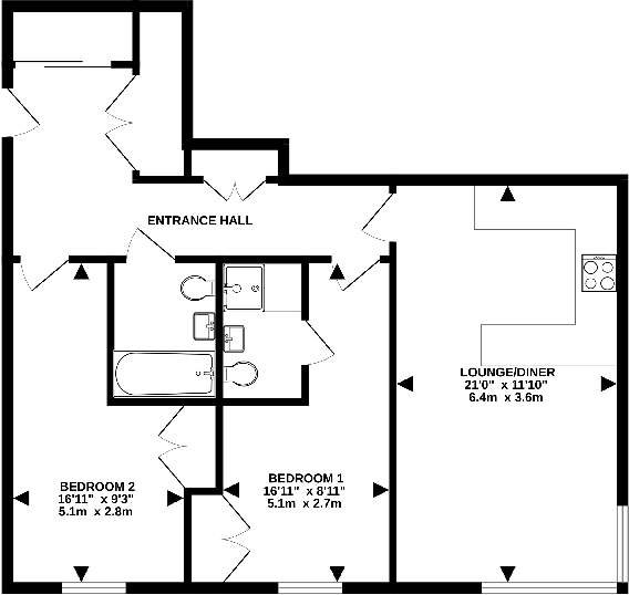
- Modern two-bedroom apartment (710 sq ft) on the second floor
- Open-plan lounge with designer kitchen and Bosch appliances
- Master bedroom with en-suite bathroom, plus main bathroom with stylish ceramic finishes
- Energy-efficient with solar panel-assisted electric heating
- Gated under-croft parking with electric car chargers
- Access to communal Zen Garden and on-site gym
- Located within walking distance to Penarth town and seaside
Enjoy contemporary living in this brand-new, spacious two-bedroom apartment located in the sought-after Windsor Gardens. This meticulously designed home features an open-plan lounge and fully integrated designer kitchen, perfect for entertaining family and friends. Both double bedrooms provide ample space, including a master suite with a stylish en-suite bathroom that boasts luxurious finishes.
The property is thoughtfully equipped with modern amenities, such as a gated under-croft parking area with electric charging points, resident bike storage, and a communal courtyard garden. Residents can also take advantage of the on-site gym and the energy-efficient design, which includes solar panels to reduce utility costs.
Set in a vibrant community in Penarth, just a stone’s throw from the beautiful seaside and local schools, this apartment is perfect for families and professionals alike. With a lengthy 999-year lease and no ground rent, this chain-free property represents not just a place to live but a lifestyle of comfort and convenience. Don’t miss out on your opportunity to own this stylish corner of Penarth—schedule your viewing today!
2 bedroom apartment for sale in Windsor Gardens Windsor Road, Penarth, Cardiff, CF64 — £360,000 • 2 bed • 2 bath • 753 ft²
2 bedroom apartment for sale in Windsor Gardens Windsor Road, Penarth, Cardiff, CF64 — £290,000 • 2 bed • 2 bath • 710 ft²
2 bedroom apartment for sale in Windsor Gardens, Windsor Road, Penarth, CF64 — £410,000 • 2 bed • 2 bath • 850 ft²
2 bedroom apartment for sale in Windsor Gardens Windsor Road, Penarth, Cardiff, CF64 — £365,000 • 2 bed • 2 bath • 753 ft²
2 bedroom apartment for sale in Windsor Gardens, Penarth, CF64 — £410,000 • 2 bed • 2 bath • 790 ft²
2 bedroom apartment for sale in Windsor Gardens, Penarth, CF64 — £375,000 • 2 bed • 2 bath • 850 ft²














































































































